Maison neuve à
Notre-Dame-de-Monts
(85690) Référence :
SS2435080_4
Prix du projet : Maison avec Terrain
prix 239 500 €
- 4 pièces
- 3 chambres
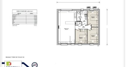
- Surface maison 79 m2
Maison T4 (79 m²) à vendre à Notre-Dame-de-Monts
MAISON 4 PIÈCES NEUVE
En vente : située à 589 m de l'océan Atlantique, nous vous proposons à Notre-Dame-de-Monts (85690), cette maison de 4 pièces de plain-pied de 79 m² et de 368 m² de terrain.
Conçue de plain-pied, elle compte trois chambres, une cuisine et une salle de bains. La maison est neuve.
Il y a l'École Primaire Privée Nazareth et l'École Primaire Publique les Embruns à moins de 10 minutes. On trouve un tennis, des commerces, trois boulangeries, un supermarché, deux poissonneries et une épicerie à proximité. Ne manquez pas le marché Place du marché tous les dimanches matin.
Elle est à vendre pour la somme de 239 500 €.
Contactez Samuel SIRET (06 71 72 13 06) pour obtenir de plus amples informations sur cette propriété, sur les modalités de vente ou sur les démarches à suivre. LMP Constructeur Challans est là pour vous accompagner à toutes les étapes de l'achat.
Mentions légales
Terrain proposé par un partenaire foncier selon disponibilités et autorisation de publicité au prix de 105 500 €. Hors droit d'enregistrement et frais de notaire. Terrain + Maison proposés au prix de 239 500 € (Hors branchements et raccordements, papiers peints, peintures, revêtement de sol dans les chambres. Tarif modifiable sans préavis). Etiquette énergie : A. Différents modèles disponibles pour ce terrain. Assurances et garanties du constructeur (RC professionnelle, décennale, dommage ouvrage, garantie de remboursement de l'acompte, livraison à prix et délai convenu) : https://www.lmp-constructeur.com/mentions-legales/.Agence Logis du Marais Poitevin de Challans (85300)
- Téléphone :
- 02 51 55 17 74
- Adressse :
- 4 Place du Champ de Foire
85300 Challans, France
