Maison neuve à
Notre-Dame-de-Monts
(85690) Référence :
SS2400600_1
Prix du projet : Maison avec Terrain
prix 213 000 €
- 3 pièces
- 2 chambres
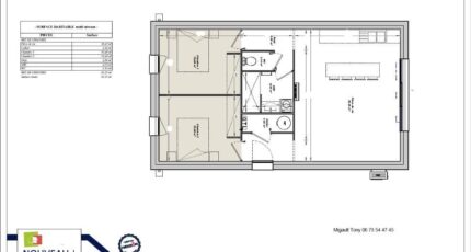
- Surface maison 61 m2
VENTE : maison T3 (61 m²) à Notre-Dame-de-Monts
MAISON 3 PIÈCES NEUVE
À vendre à 589 m de l'océan Atlantique, à Notre-Dame-de-Monts (85690), découvrez cette maison de 3 pièces de plain-pied de 61 m² et de 300 m² de terrain. Elle compte deux chambres, une cuisine et une salle de bains.
Cette maison est neuve.
Il y a l'École Primaire Privée Nazareth et l'École Primaire Publique les Embruns à moins de 10 minutes. On trouve un tennis, des commerces, trois boulangeries, un supermarché, deux poissonneries et une épicerie à quelques minutes du bien. Enfin, le marché Place du marché anime les environs tous les dimanches matin.
Elle est proposée à l'achat pour 213 000 €.
Contactez Samuel SIRET (tél : 02-51-55-17-74) pour plus de renseignements sur cette propriété, sur les démarches à suivre ou sur les modalités de vente. LMP Constructeur Challans vous accompagne à toutes les étapes de l'achat et dans tous vos projets immobiliers.
Mentions légales
Terrain proposé par un partenaire foncier selon disponibilités et autorisation de publicité au prix de 85 000 €. Hors droit d'enregistrement et frais de notaire. Terrain + Maison proposés au prix de 213 000 € (Hors branchements et raccordements, papiers peints, peintures, revêtement de sol dans les chambres. Tarif modifiable sans préavis). Etiquette énergie : A. Différents modèles disponibles pour ce terrain. Assurances et garanties du constructeur (RC professionnelle, décennale, dommage ouvrage, garantie de remboursement de l'acompte, livraison à prix et délai convenu) : https://www.lmp-constructeur.com/mentions-legales/.Agence Logis du Marais Poitevin de Challans (85300)
- Téléphone :
- 02 51 55 17 74
- Adressse :
- 4 Place du Champ de Foire
85300 Challans, France
