Maison neuve à
Notre-Dame-de-Monts
(85690) Référence :
NR2386237_3
Prix du projet : Maison avec Terrain
prix 244 900 €
- 2 pièces
- 2 chambres
- Surface maison 61 m2
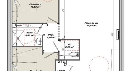
Maison de 2 pièces (61 m²) en vente à Notre-Dame-de-Monts
IDÉALEMENT SITUÉE - MAISON 2 PIÈCES NEUVE
À 589 m de l'océan Atlantique, nous vous proposons cette maison de 2 pièces de plain-pied de 61 m² en vente, idéalement située dans Notre-Dame-de-Monts (85690). Elle propose deux chambres, une cuisine et une salle de bains.
Le terrain du bien est de 480 m².
Cette maison est neuve.
La maison se trouve dans un secteur recherché. L'École Primaire Privée Nazareth et l'École Primaire Publique les Embruns sont implantées à moins de 10 minutes à pied. Il y a un tennis, des commerces, trois boulangeries, un supermarché, deux poissonneries et un bureau de poste dans les environs. Enfin, le marché Place du marché anime les environs chaque dimanche matin.
Son prix de vente est de 244 900 €.
Prenez contact avec Nicolas RISSELIN (06-80-33-03-82) pour toute question sur la propriété et sur les démarches à suivre. LMP Constructeur Saint-Gilles-Croix-de-Vie est là pour vous accompagner dans tous vos projets immobiliers.
Mentions légales
Terrain proposé par un partenaire foncier selon disponibilités et autorisation de publicité au prix de 109 000 €. Hors droit d'enregistrement et frais de notaire. Terrain + Maison proposés au prix de 135 900 € (Hors branchements et raccordements, papiers peints, peintures, revêtement de sol dans les chambres. Tarif modifiable sans préavis). Etiquette énergie : A. Différents modèles disponibles pour ce terrain. Assurances et garanties du constructeur (RC professionnelle, décennale, dommage ouvrage, garantie de remboursement de l'acompte, livraison à prix et délai convenu) : https://www.lmp-constructeur.com/mentions-legales/.Agence Logis du Marais Poitevin de Saint-Gilles-Croix-de-Vie (85800)
- Téléphone :
- 02 51 55 34 29
- Adressse :
- 5 rue Gautté
85800 Saint-Gilles-Croix-de-Vie, France
