Maison neuve à
Notre-Dame-de-Monts
(85690) Référence :
NR2386237_2
Prix du projet : Maison avec Terrain
prix 229 900 €
- 2 pièces
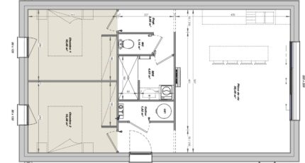
- 2 chambres
- Surface maison 61 m2
VENTE d'une maison F2 (61 m²) à Notre-Dame-de-Monts
IDÉALEMENT SITUÉE - MAISON 2 PIÈCES NEUVE
En vente : à 589 m de l'océan Atlantique, votre agence LMP Constructeur Saint-Gilles-Croix-de-Vie est heureuse de vous présenter cette maison de 2 pièces de plain-pied de 61 m² et de 480 m² de terrain, idéalement située dans Notre-Dame-de-Monts (85690). Elle dispose de deux chambres, d'une cuisine et d'une salle de bains.
La maison est neuve.
Cette maison se situe dans un quartier recherché. L'École Primaire Privée Nazareth et l'École Primaire Publique les Embruns se trouvent à moins de 10 minutes à pied. Il y a un tennis, des commerces, trois boulangeries, un supermarché, une épicerie et un bureau de poste dans les environs. Enfin, le marché Place du marché a lieu tous les dimanches matin.
Elle est proposée à l'achat pour 229 900 €.
Contactez notre agence (Nicolas RISSELIN : 06-80-33-03-82) pour tout renseignement sur la maison. LMP Constructeur Saint-Gilles-Croix-de-Vie est là pour vous accompagner dans toutes vos démarches.
Mentions légales
Terrain proposé par un partenaire foncier selon disponibilités et autorisation de publicité au prix de 109 000 €. Hors droit d'enregistrement et frais de notaire. Terrain + Maison proposés au prix de 120 900 € (Hors branchements et raccordements, papiers peints, peintures, revêtement de sol dans les chambres. Tarif modifiable sans préavis). Etiquette énergie : A. Différents modèles disponibles pour ce terrain. Assurances et garanties du constructeur (RC professionnelle, décennale, dommage ouvrage, garantie de remboursement de l'acompte, livraison à prix et délai convenu) : https://www.lmp-constructeur.com/mentions-legales/.Agence Logis du Marais Poitevin de Saint-Gilles-Croix-de-Vie (85800)
- Téléphone :
- 02 51 55 34 29
- Adressse :
- 5 rue Gautté
85800 Saint-Gilles-Croix-de-Vie, France
