Maison neuve à
Notre-Dame-de-Monts
(85690) Référence :
NR2386237_1
Prix du projet : Maison avec Terrain
prix 199 900 €
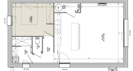
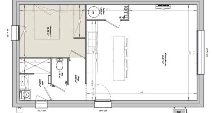
- 2 pièces
- 1 chambre
- Surface maison 50 m2
VENTE d'une maison de 2 pièces (50 m²) à Notre-Dame-de-Monts
IDÉALEMENT SITUÉE - MAISON 2 PIÈCES NEUVE
À vendre : à 589 m de l'océan Atlantique, nous sommes ravis de vous présenter, idéalement située dans Notre-Dame-de-Monts (85690), cette maison de 2 pièces de plain-pied de 50 m² et de 480 m² de terrain. Son intérieur offre une chambre, une cuisine et une salle de bains.
La maison est neuve.
Cette maison se trouve dans un secteur attractif. L'École Primaire Privée Nazareth et l'École Primaire Publique les Embruns sont implantées à moins de 10 minutes à pied. Il y a un tennis, des commerces, trois boulangeries, un supermarché, une épicerie et deux poissonneries dans les environs. Ne manquez pas le marché Place du marché chaque dimanche matin.
Elle est proposée à l'achat pour 199 900 €.
N'hésitez pas à prendre contact avec notre agence (RISSELIN Nicolas : 06-80-33-03-82) pour tout renseignement sur la maison ou sur les modalités de vente. LMP Constructeur Saint-Gilles-Croix-de-Vie vous accompagne dans toutes vos démarches et à toutes les étapes de votre projet.
Mentions légales
Terrain proposé par un partenaire foncier selon disponibilités et autorisation de publicité au prix de 109 000 €. Hors droit d'enregistrement et frais de notaire. Terrain + Maison proposés au prix de 90 900 € (Hors branchements et raccordements, papiers peints, peintures, revêtement de sol dans les chambres. Tarif modifiable sans préavis). Etiquette énergie : A. Différents modèles disponibles pour ce terrain. Assurances et garanties du constructeur (RC professionnelle, décennale, dommage ouvrage, garantie de remboursement de l'acompte, livraison à prix et délai convenu) : https://www.lmp-constructeur.com/mentions-legales/.Agence Logis du Marais Poitevin de Saint-Gilles-Croix-de-Vie (85800)
- Téléphone :
- 02 51 55 34 29
- Adressse :
- 5 rue Gautté
85800 Saint-Gilles-Croix-de-Vie, France
