Maison neuve à
Notre-Dame-de-Monts
(85690) Référence :
NR2373864_1
Prix du projet : Maison avec Terrain
prix 186 900 €
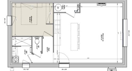
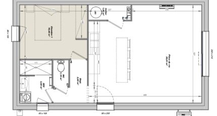
- 2 pièces
- 1 chambre
- Surface maison 50 m2
***** A SEULEMENT 10 MINUTES DE LA MER *****
VENTE : maison de 2 pièces (50 m²) à Notre-Dame-de-Monts
MAISON 2 PIÈCES NEUVE
Au bord de l'océan Atlantique, laissez vous charmer par en vente à Notre-Dame-de-Monts (85690), cette maison de 2 pièces de plain-pied de 50 m². Son intérieur est composé d'une chambre, d'une cuisine et d'une salle de bains.
Le terrain du bien est de 382 m².
La maison est neuve.
Il y a l'École Primaire Privée Nazareth et l'École Primaire Publique les Embruns à moins de 10 minutes à pied. On trouve un tennis, des commerces, trois boulangeries, un supermarché, une boucherie-charcuterie et une épicerie à quelques minutes de la maison. Ne manquez pas le marché Place du marché tous les dimanches matin.
Elle est proposée à l'achat pour 186 900 €.
Contactez Nicolas RISSELIN (06-80-33-03-82) pour toute information sur cette maison ou sur les démarches à suivre. LMP Constructeur Saint-Gilles-Croix-de-Vie vous accompagne à toutes les étapes de votre projet et dans tous vos projets immobiliers.
***** A SEULEMENT 10 MINUTES DE LA MER *****
Mentions légales
Terrain proposé par un partenaire foncier selon disponibilités et autorisation de publicité au prix de 78 150 €. Hors droit d'enregistrement et frais de notaire. Terrain + Maison proposés au prix de 108 750 € (Hors branchements et raccordements, papiers peints, peintures, revêtement de sol dans les chambres. Tarif modifiable sans préavis). Etiquette énergie : A. Différents modèles disponibles pour ce terrain. Assurances et garanties du constructeur (RC professionnelle, décennale, dommage ouvrage, garantie de remboursement de l'acompte, livraison à prix et délai convenu) : https://www.lmp-constructeur.com/mentions-legales/.Agence Logis du Marais Poitevin de Saint-Gilles-Croix-de-Vie (85800)
- Téléphone :
- 02 51 55 34 29
- Adressse :
- 5 rue Gautté
85800 Saint-Gilles-Croix-de-Vie, France
