Maison neuve à
Notre-Dame-de-Monts
(85690) Référence :
NR2247501_2
Prix du projet : Maison avec Terrain
prix 193 900 €
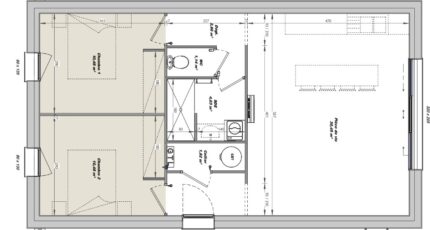
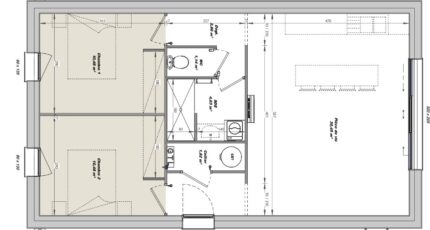
- 2 pièces
- 2 chambres
- Surface maison 61 m2
******************PROCHE MER ET COMMERCES ************
Notre-Dame-de-Monts : maison F2 (61 m²) à vendre
EMPLACEMENT PRIVILÉGIÉ - MAISON 2 PIÈCES NEUVE
En vente à 589 m de l'océan Atlantique, laissez vous charmer par cette maison de 2 pièces de plain-pied de 61 m² et de 380 m² de terrain bénéficiant d'un emplacement privilégié dans Notre-Dame-de-Monts (85690). Son intérieur est composé de deux chambres, d'une cuisine et d'une salle de bains.
Cette maison est neuve.
Cette maison se situe dans un quartier recherché. On trouve l'École Primaire Privée Nazareth et l'École Primaire Publique les Embruns à moins de 10 minutes à pied. Il y a un tennis, des commerces, trois boulangeries, un supermarché, une épicerie et une boucherie-charcuterie à quelques minutes. Le marché Place du marché a lieu tous les dimanches matin.
Son prix de vente est de 193 900 €.
Contactez Nicolas RISSELIN (tél : 06-80-33-03-82) pour plus d'informations sur la maison ou sur les démarches à suivre. LMP Constructeur Saint-Gilles-Croix-de-Vie vous accompagne à toutes les étapes de votre projet et dans tous vos projets immobiliers.
******************PROCHE MER ET COMMERCES ************
Mentions légales
Terrain proposé par un partenaire foncier selon disponibilités et autorisation de publicité au prix de 78 100 €. Hors droit d'enregistrement et frais de notaire. Maison proposée, avec un contrat de construction de maison individuelle, dans le cadre de la loi du 19/12/1990, au prix de 115 800 € (Hors branchements et raccordements, papiers peints, peintures, revêtement de sol dans les chambres, qui sont chiffrés dans les travaux qui restent à charge du client. Tarif modifiable sans préavis). Étiquette énergie : A. Différents modèles disponibles pour ce terrain. Assurances et garanties du constructeur comprises (RC professionnelle, décennale, dommage ouvrage).Agence Logis du Marais Poitevin de Saint-Gilles-Croix-de-Vie (85800)
- Téléphone :
- 02 51 55 34 29
- Adressse :
- 5 rue Gautté
85800 Saint-Gilles-Croix-de-Vie, France
