Maison neuve à
Notre-Dame-de-Monts
(85690) Référence :
NR2247501_1
Prix du projet : Maison avec Terrain
prix 179 900 €
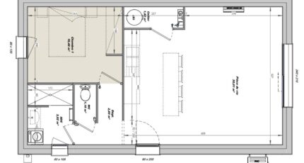
- 2 pièces
- 1 chambre
- Surface maison 50 m2
******************PROCHE MER ET COMMERCES ************
VENTE d'une maison de 2 pièces (50 m²) à Notre-Dame-de-Monts
EMPLACEMENT PRIVILÉGIÉ - MAISON 2 PIÈCES NEUVE
En vente : au bord de l'océan Atlantique, bénéficiant d'un emplacement d'exception dans Notre-Dame-de-Monts (85690), notre agence LMP Constructeur Saint-Gilles-Croix-de-Vie est heureuse de vous proposer cette maison de 2 pièces de plain-pied de 50 m².
Conçue de plain-pied, elle propose une chambre, une cuisine et une salle de bains. La maison est neuve.
Le terrain de la propriété s'étend sur 380 m².
La maison se trouve dans un secteur recherché. L'École Primaire Privée Nazareth et l'École Primaire Publique les Embruns sont implantées à moins de 10 minutes à pied. On trouve un tennis, des commerces, trois boulangeries, un supermarché, une boucherie-charcuterie et une épicerie à proximité de la maison. Ne manquez pas le marché Place du marché chaque dimanche matin.
Elle est proposée à l'achat pour 179 900 €.
Contactez notre agence (Nicolas RISSELIN : 06-80-33-03-82) pour toute information sur la maison, sur les démarches à suivre ou sur les modalités de vente. LMP Constructeur Saint-Gilles-Croix-de-Vie est là pour vous accompagner dans tous vos projets immobiliers.
******************PROCHE MER ET COMMERCES ************
Mentions légales
Terrain proposé par un partenaire foncier selon disponibilités et autorisation de publicité au prix de 78 100 €. Hors droit d'enregistrement et frais de notaire. Maison proposée, avec un contrat de construction de maison individuelle, dans le cadre de la loi du 19/12/1990, au prix de 101 800 € (Hors branchements et raccordements, papiers peints, peintures, revêtement de sol dans les chambres, qui sont chiffrés dans les travaux qui restent à charge du client. Tarif modifiable sans préavis). Étiquette énergie : A. Différents modèles disponibles pour ce terrain. Assurances et garanties du constructeur comprises (RC professionnelle, décennale, dommage ouvrage).Agence Logis du Marais Poitevin de Saint-Gilles-Croix-de-Vie (85800)
- Téléphone :
- 02 51 55 34 29
- Adressse :
- 5 rue Gautté
85800 Saint-Gilles-Croix-de-Vie, France
