Maison neuve à
Noirmoutier-en-l'Île
(85330) Référence :
TM2314638_1
Prix du projet : Maison avec Terrain
prix 855 000 €
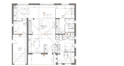
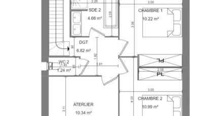
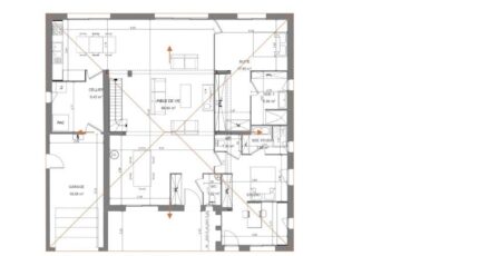
- 6 pièces
- 5 chambres
- Surface maison 165 m2
VENTE : maison T6 (165 m²) à Noirmoutier-en-l'Île Secteur Le Vieil.
IDÉALEMENT SITUÉE - MAISON 6 PIÈCES NEUVE
En vente à 16 km de l'océan Atlantique et à deux pas de Saint-Nazaire, nous vous présentons cette maison de 6 pièces de 165 m² idéalement située dans Noirmoutier-en-l'Île (85330). Elle propose cinq chambres, une cuisine et trois salles de bains.
Le terrain du bien s'étend sur 800 m².
La maison est neuve.
La maison se situe dans un quartier recherché. L'École Primaire Publique Richer, l'École Primaire Privée Saint-Philbert et le Collège Molière sont implantés à moins de 10 minutes . On trouve des commerces, des boulangeries, deux supermarchés, une boucherie-charcuterie et un bureau de poste à quelques minutes à peine. Le marché Place de la république anime les environs.
Elle est à vendre pour la somme de 855 000 €.
Contactez notre agence (Tony MIGAULT : 06-73-54-47-45) pour obtenir de plus amples informations sur la maison et sur les modalités de vente.
Mentions légales
Terrain proposé par un partenaire foncier selon disponibilités et autorisation de publicité au prix de 497 800 €. Hors droit d'enregistrement et frais de notaire. Maison proposée, avec un contrat de construction de maison individuelle, dans le cadre de la loi du 19/12/1990, au prix de 357 200 € (Hors branchements et raccordements, papiers peints, peintures, revêtement de sol dans les chambres, qui sont chiffrés dans les travaux qui restent à charge du client. Tarif modifiable sans préavis). Étiquette énergie : A. Différents modèles disponibles pour ce terrain. Assurances et garanties du constructeur comprises (RC professionnelle, décennale, dommage ouvrage).Agence Logis du Marais Poitevin de Challans (85300)
- Téléphone :
- 02 51 55 17 74
- Adressse :
- 4 Place du Champ de Foire
85300 Challans, France
