Maison neuve à
Mervent
(85200) Référence :
JG2307383_3
Prix du projet : Maison avec Terrain
prix 315 000 €
- 5 pièces
- 4 chambres
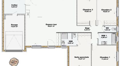
- Surface maison 113 m2
Maison de 5 pièces (113 m²) à vendre à Mervent
MAISON 5 PIÈCES NEUVE
À10 MIN DE FONTENAY LE COMTE et 35 min de NIORT à vendre à Mervent (85200), nous sommes heureux de vous proposer cette maison de 5 pièces de plain-pied de 113 m². Son intérieur propose quatre chambres, une cuisine , deux salles de bains et un .garage
Le terrain du bien s'étend sur 1 198 m².
Il y a l'École Primaire Publique Groupe Scolaire Maro-Vidua à moins de 10 minutes à pied. L'autoroute A83 est accessible à 11 km. On trouve un commerce, une boucherie-charcuterie et une supérette dans les environs.
Son prix de vente est de 315 000 €.
Contactez notre agence (Jessica GAUTHREAU : 07-49-20-70-93) pour plus de renseignements sur le bien, sur les démarches à suivre ou sur les modalités de vente. Donnez vie à vos projets immobiliers avec LMP Constructeur Angles.
LMP constructeur 24 rue nationale 85750 angles /02.51.27.43.52
Annonce proposée par un Agent Commercial Partenaire.
Mentions légales
Terrain proposé par un partenaire foncier selon disponibilités et autorisation de publicité au prix de 75 000 €. Hors droit d'enregistrement et frais de notaire. Maison proposée, avec un contrat de construction de maison individuelle, dans le cadre de la loi du 19/12/1990, au prix de 240 000 € (Hors branchements et raccordements, papiers peints, peintures, revêtement de sol dans les chambres, qui sont chiffrés dans les travaux qui restent à charge du client. Tarif modifiable sans préavis). Étiquette énergie : A. Différents modèles disponibles pour ce terrain. Assurances et garanties du constructeur comprises (RC professionnelle, décennale, dommage ouvrage).Agence Logis du Marais Poitevin de Angles (85750)
- Téléphone :
- 02 51 27 43 52
- Adressse :
- 24 rue Nationale
85750 Angles, France
