Maison neuve à
Martinet
(85150) Référence :
NR2246484_6
Prix du projet : Maison avec Terrain
prix 189 900 €
- 2 pièces
- 2 chambres
- Surface maison 61 m2
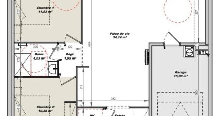
Martinet : maison de 2 pièces (61 m²) en vente
IDÉALEMENT SITUÉE - MAISON 2 PIÈCES NEUVE
À 20 km de l'océan Atlantique et à quelques kilomètres de La Roche-sur-Yon, en vente idéalement située dans Martinet (85150), laissez vous charmer par cette maison de 2 pièces de plain-pied de 61 m².
Conçue de plain-pied, elle compte deux chambres, une cuisine et une salle de bains. La maison est neuve.
Le terrain du bien s'étend sur 414 m².
Cette propriété se trouve dans un quartier recherché. L'École Primaire Privée Saint Joseph est implantée à moins de 10 minutes à pied. Côté transports, on trouve la gare La Mothe-Achard à moins de 10 minutes en voiture. On trouve un accès à l'autoroute A87 à 13 km. Il y a une supérette à quelques minutes à peine.
Elle est proposée à l'achat pour 189 900 €.
Contactez Nicolas RISSELIN (tél : 06-80-33-03-82) pour plus d'informations sur la maison ou sur les modalités de vente.
Mentions légales
Terrain proposé par un partenaire foncier selon disponibilités et autorisation de publicité au prix de 56 000 €. Hors droit d'enregistrement et frais de notaire. Maison proposée, avec un contrat de construction de maison individuelle, dans le cadre de la loi du 19/12/1990, au prix de 133 900 € (Hors branchements et raccordements, papiers peints, peintures, revêtement de sol dans les chambres, qui sont chiffrés dans les travaux qui restent à charge du client. Tarif modifiable sans préavis). Étiquette énergie : A. Différents modèles disponibles pour ce terrain. Assurances et garanties du constructeur comprises (RC professionnelle, décennale, dommage ouvrage).Agence Logis du Marais Poitevin de Challans (85300)
- Téléphone :
- 02 51 55 17 74
- Adressse :
- 4 Place du Champ de Foire
85300 Challans, France
