Maison neuve à
Martinet
(85150) Référence :
NR2246484_5
Prix du projet : Maison avec Terrain
prix 179 900 €
- 2 pièces
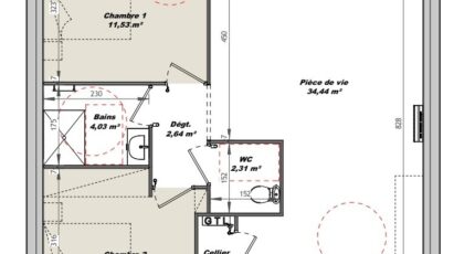
- 2 chambres
- Surface maison 61 m2
Martinet : maison T2 (61 m²) à vendre
IDÉALEMENT SITUÉE - MAISON 2 PIÈCES NEUVE
En vente : située à 20 km de l'océan Atlantique et à deux pas de La Roche-sur-Yon, ayez le coup de coeur pour cette maison de 2 pièces de plain-pied de 61 m², idéalement située dans Martinet (85150).
Elle comporte deux chambres, une cuisine et une salle de bains. La maison est neuve.
Le terrain de la propriété s'étend sur 414 m².
Cette maison est située dans un secteur attractif. Il y a l'École Primaire Privée Saint Joseph à moins de 10 minutes à pied. Côté transports, on trouve la gare La Mothe-Achard à moins de 10 minutes en voiture. Il y a un accès à l'autoroute A87 à 13 km. Il y a une supérette à quelques minutes.
Son prix de vente est de 179 900 €.
Prenez contact avec notre agence (Nicolas RISSELIN : 06-80-33-03-82) pour toute question sur la maison, sur les démarches à suivre ou sur les modalités de vente. LMP Constructeur Challans est là pour vous accompagner à toutes les étapes de l'achat.
Mentions légales
Terrain proposé par un partenaire foncier selon disponibilités et autorisation de publicité au prix de 56 000 €. Hors droit d'enregistrement et frais de notaire. Maison proposée, avec un contrat de construction de maison individuelle, dans le cadre de la loi du 19/12/1990, au prix de 123 900 € (Hors branchements et raccordements, papiers peints, peintures, revêtement de sol dans les chambres, qui sont chiffrés dans les travaux qui restent à charge du client. Tarif modifiable sans préavis). Étiquette énergie : A. Différents modèles disponibles pour ce terrain. Assurances et garanties du constructeur comprises (RC professionnelle, décennale, dommage ouvrage).Agence Logis du Marais Poitevin de Challans (85300)
- Téléphone :
- 02 51 55 17 74
- Adressse :
- 4 Place du Champ de Foire
85300 Challans, France
