Maison neuve à
Maché
(85190) Référence :
NR2368479_6
Prix du projet : Maison avec Terrain
prix 188 900 €
- 2 pièces
- 3 chambres
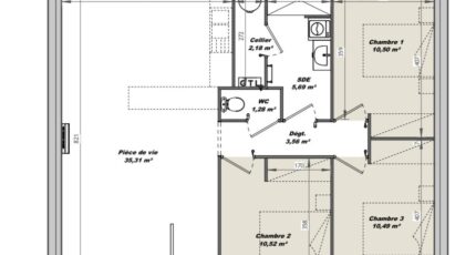
- Surface maison 79 m2
***** A SEULEMENT 15 MINUTES DE ST GILLES CROIX DE VIE *****
Maché : maison F2 (79 m²) en vente
MAISON 2 PIÈCES NEUVE - PROCHE DE LA ROCHE-SUR-YON
À 23 km de l'océan Atlantique et à 24 km de La Roche-sur-Yon, à vendre à Maché (85190), nous vous proposons cette maison de 2 pièces de plain-pied de 79 m².
Conçue de plain-pied, elle est composée de trois chambres, d'une cuisine et d'une salle de bains. Cette maison est neuve.
Le terrain du bien est de 349 m².
Il y a l'École Primaire Privée Saint Joseph à moins de 10 minutes à pied. L'autoroute A87 est accessible à 18 km. On trouve un bassin de natation, un tennis, une boulangerie et une épicerie à proximité.
Elle est proposée à l'achat pour 188 900 €.
N'hésitez pas à prendre contact avec Nicolas RISSELIN (06-80-33-03-82) pour tout renseignement sur la maison.
***** A SEULEMENT 15 MINUTES DE ST GILLES CROIX DE VIE *****
Mentions légales
Terrain proposé par un partenaire foncier selon disponibilités et autorisation de publicité au prix de 56 200 €. Hors droit d'enregistrement et frais de notaire. Terrain + Maison proposés au prix de 132 700 € (Hors branchements et raccordements, papiers peints, peintures, revêtement de sol dans les chambres. Tarif modifiable sans préavis). Etiquette énergie : A. Différents modèles disponibles pour ce terrain. Assurances et garanties du constructeur (RC professionnelle, décennale, dommage ouvrage, garantie de remboursement de l'acompte, livraison à prix et délai convenu) : https://www.lmp-constructeur.com/mentions-legales/.Agence Logis du Marais Poitevin de Challans (85300)
- Téléphone :
- 02 51 55 17 74
- Adressse :
- 4 Place du Champ de Foire
85300 Challans, France
