Maison neuve à
Maché
(85190) Référence :
NR2368479_3
Prix du projet : Maison avec Terrain
prix 152 900 €
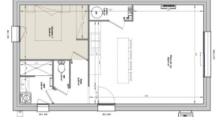
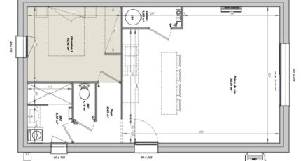
- 2 pièces
- 1 chambre
- Surface maison 50 m2
***** A SEULEMENT 15 MINUTES DE ST GILLES CROIX DE VIE *****
VENTE d'une maison T2 (50 m²) à Maché
MAISON 2 PIÈCES NEUVE - PROCHE DE LA ROCHE-SUR-YON
À vendre : à 23 km de la côte atlantique et à deux pas de La Roche-sur-Yon, à Maché (85190), nous vous présentons cette maison de 2 pièces de plain-pied de 50 m² et de 349 m² de terrain.
Elle comporte une chambre, une cuisine et une salle de bains. Cette maison est neuve.
L'École Primaire Privée Saint Joseph est implantée à moins de 10 minutes à pied. On trouve un accès à l'autoroute A87 à 18 km. Il y a un bassin de natation, un tennis, une boulangerie et une épicerie dans les environs.
Elle est proposée à l'achat pour 152 900 €.
N'hésitez pas à prendre contact avec Nicolas RISSELIN (06-80-33-03-82) pour plus d'informations sur la maison. LMP Constructeur Challans vous accompagne dans tous vos projets immobiliers et dans toutes vos démarches.
***** A SEULEMENT 15 MINUTES DE ST GILLES CROIX DE VIE *****
Mentions légales
Terrain proposé par un partenaire foncier selon disponibilités et autorisation de publicité au prix de 56 200 €. Hors droit d'enregistrement et frais de notaire. Terrain + Maison proposés au prix de 96 700 € (Hors branchements et raccordements, papiers peints, peintures, revêtement de sol dans les chambres. Tarif modifiable sans préavis). Etiquette énergie : A. Différents modèles disponibles pour ce terrain. Assurances et garanties du constructeur (RC professionnelle, décennale, dommage ouvrage, garantie de remboursement de l'acompte, livraison à prix et délai convenu) : https://www.lmp-constructeur.com/mentions-legales/.Agence Logis du Marais Poitevin de Challans (85300)
- Téléphone :
- 02 51 55 17 74
- Adressse :
- 4 Place du Champ de Foire
85300 Challans, France
