Maison neuve à
Maché
(85190) Référence :
NR2368479_1
Prix du projet : Maison avec Terrain
prix 193 900 €
- 2 pièces
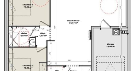
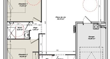
- 2 chambres
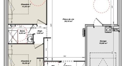
- Surface maison 61 m2
Maison T2 (61 m²) en vente à Maché
PROCHE DE LA ROCHE-SUR-YON - MAISON 2 PIÈCES NEUVE
À 23 km de l'océan Atlantique et à quelques kilomètres de La Roche-sur-Yon, en vente à Maché (85190), nous sommes ravis de vous proposer cette maison de 2 pièces de plain-pied de 61 m² et de 349 m² de terrain.
Elle propose deux chambres, une cuisine et une salle de bains. La maison est neuve.
L'École Primaire Privée Saint Joseph est implantée à moins de 10 minutes à pied. L'autoroute A87 est accessible à 18 km. Il y a un bassin de natation, un tennis, une boulangerie et une épicerie dans les environs.
Son prix de vente est de 193 900 €.
Prenez contact avec notre agence (Nicolas RISSELIN : 06-80-33-03-82) pour plus d'informations sur cette maison. Faites de vos projets immobiliers une réalité avec LMP Constructeur Challans.
Mentions légales
Terrain proposé par un partenaire foncier selon disponibilités et autorisation de publicité au prix de 56 200 €. Hors droit d'enregistrement et frais de notaire. Terrain + Maison proposés au prix de 137 700 € (Hors branchements et raccordements, papiers peints, peintures, revêtement de sol dans les chambres. Tarif modifiable sans préavis). Etiquette énergie : A. Différents modèles disponibles pour ce terrain. Assurances et garanties du constructeur (RC professionnelle, décennale, dommage ouvrage, garantie de remboursement de l'acompte, livraison à prix et délai convenu) : https://www.lmp-constructeur.com/mentions-legales/.Agence Logis du Marais Poitevin de Challans (85300)
- Téléphone :
- 02 51 55 17 74
- Adressse :
- 4 Place du Champ de Foire
85300 Challans, France
