Maison neuve à
L'Île-d'Olonne
(85340) Référence :
TM2251531_2
Prix du projet : Maison avec Terrain
prix 407 000 €
- 4 pièces
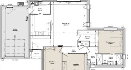
- 3 chambres
- Surface maison 110 m2
L'Île-d'Olonne : maison F4 (110 m²) à vendre
IDÉALEMENT SITUÉE - MAISON 4 PIÈCES NEUVE
À vendre : à 5 km de la côte atlantique et à 30 km de La Roche-sur-Yon, nous sommes heureux de vous présenter cette maison de 4 pièces de plain-pied de 110 m² et de 986 m² de terrain, idéalement située dans L'Île-d'Olonne (85340). Conçue de plain-pied, elle compte trois chambres, une cuisine et une salle de bains.
Cette maison est neuve.
Cette maison se trouve dans un quartier attractif. Il y a l'École Primaire Privée Sainte Anne et l'École Primaire Publique les Salines à moins de 10 minutes . Côté transports, on trouve deux gares (Olonne-sur-Mer et Les Sables-d'Olonne) à moins de 15 minutes en voiture. Il y a une boulangerie, un commerce, une poissonnerie, une épicerie et une boucherie charcuterie dans les environs.
Elle est proposée à l'achat pour 407 000 €.
Contactez notre agence (Tony MIGAULT : 06-73-54-47-45) pour obtenir de plus amples renseignements sur la maison, sur les démarches à suivre ou sur les modalités de vente.
Mentions légales
Terrain proposé par un partenaire foncier selon disponibilités et autorisation de publicité au prix de 149 900 €. Hors droit d'enregistrement et frais de notaire. Maison proposée, avec un contrat de construction de maison individuelle, dans le cadre de la loi du 19/12/1990, au prix de 257 100 € (Hors branchements et raccordements, papiers peints, peintures, revêtement de sol dans les chambres, qui sont chiffrés dans les travaux qui restent à charge du client. Tarif modifiable sans préavis). Étiquette énergie : A. Différents modèles disponibles pour ce terrain. Assurances et garanties du constructeur comprises (RC professionnelle, décennale, dommage ouvrage).Agence Logis du Marais Poitevin de Challans (85300)
- Téléphone :
- 02 51 55 17 74
- Adressse :
- 4 Place du Champ de Foire
85300 Challans, France
