Maison neuve à
Le Fenouiller
(85800) Référence :
NR2345483_3
Prix du projet : Maison avec Terrain
prix 239 900 €
- 2 pièces
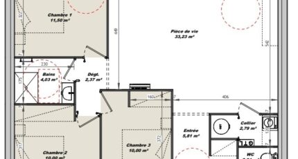
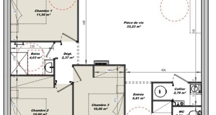
- 3 chambres
- Surface maison 61 m2
*****CENTRE BOURG*****
VENTE d'une maison de 2 pièces (61 m²) au Fenouiller
IDÉALEMENT SITUÉE - MAISON 2 PIÈCES NEUVE
À 3 km de l'océan Atlantique, nous vous proposons à vendre, idéalement située dans Le Fenouiller (85800), cette maison de 2 pièces de plain-pied de 61 m².
Son intérieur dispose de trois chambres, d'une cuisine et d'une salle de bains. Cette maison est neuve.
Le terrain de la propriété est de 359 m².
Cette maison est située dans un secteur prisé. L'École Primaire Publique le Petit Prince et l'École Primaire Privée Sainte Marie sont implantées à moins de 10 minutes à pied. Côté transports, on trouve deux gares (Saint-Hilaire-de-Riez et Saint-Gilles-Croix-de-Vie) à moins de 10 minutes en voiture. Il y a un tennis, une boulangerie, un commerce et une supérette dans les environs.
Elle est proposée à l'achat pour 239 900 €.
Prenez contact avec Nicolas RISSELIN (tél : 06-80-33-03-82) pour obtenir de plus amples informations sur la maison, sur les démarches à suivre ou sur les modalités de vente. LMP Constructeur Challans vous accompagne à toutes les étapes de l'achat et dans tous vos projets immobiliers.
*****CENTRE BOURG*****
Mentions légales
Terrain proposé par un partenaire foncier selon disponibilités et autorisation de publicité au prix de 96 500 €. Hors droit d'enregistrement et frais de notaire. Maison proposée, avec un contrat de construction de maison individuelle, dans le cadre de la loi du 19/12/1990, au prix de 143 400 € (Hors branchements et raccordements, papiers peints, peintures, revêtement de sol dans les chambres, qui sont chiffrés dans les travaux qui restent à charge du client. Tarif modifiable sans préavis). Étiquette énergie : A. Différents modèles disponibles pour ce terrain. Assurances et garanties du constructeur comprises (RC professionnelle, décennale, dommage ouvrage).Agence Logis du Marais Poitevin de Challans (85300)
- Téléphone :
- 02 51 55 17 74
- Adressse :
- 4 Place du Champ de Foire
85300 Challans, France
