Maison neuve à
Le Fenouiller
(85800) Référence :
NR2345483_2
Prix du projet : Maison avec Terrain
prix 236 900 €
- 2 pièces
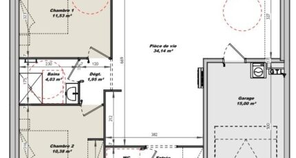
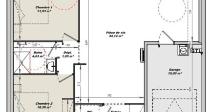
- 2 chambres
- Surface maison 61 m2
*****CENTRE BOURG*****
Le Fenouiller : maison F2 (61 m²) à vendre
IDÉALEMENT SITUÉE - MAISON 2 PIÈCES NEUVE
En vente : à 3 km de l'océan Atlantique, LMP Constructeur Challans vous présente cette maison de 2 pièces de plain-pied de 61 m² idéalement située dans Le Fenouiller (85800).
Son intérieur comporte deux chambres, une cuisine et une salle de bains. La maison est neuve.
Le terrain du bien s'étend sur 359 m².
La maison se trouve dans un quartier prisé. L'École Primaire Publique le Petit Prince et l'École Primaire Privée Sainte Marie sont implantées à moins de 10 minutes à pied. Côté transports en commun, il y a deux gares (Saint-Hilaire-de-Riez et Saint-Gilles-Croix-de-Vie) à moins de 10 minutes en voiture. On trouve un tennis, une boulangerie, un commerce et une supérette dans les environs.
Elle est proposée à l'achat pour 236 900 €.
N'hésitez pas à prendre contact avec notre agence (RISSELIN Nicolas : 06-80-33-03-82) pour obtenir de plus amples informations sur la maison, sur les démarches à suivre ou sur les modalités de vente. Donnez vie à vos projets immobiliers avec LMP Constructeur Challans.
*****CENTRE BOURG*****
Mentions légales
Terrain proposé par un partenaire foncier selon disponibilités et autorisation de publicité au prix de 96 500 €. Hors droit d'enregistrement et frais de notaire. Maison proposée, avec un contrat de construction de maison individuelle, dans le cadre de la loi du 19/12/1990, au prix de 140 400 € (Hors branchements et raccordements, papiers peints, peintures, revêtement de sol dans les chambres, qui sont chiffrés dans les travaux qui restent à charge du client. Tarif modifiable sans préavis). Étiquette énergie : A. Différents modèles disponibles pour ce terrain. Assurances et garanties du constructeur comprises (RC professionnelle, décennale, dommage ouvrage).Agence Logis du Marais Poitevin de Challans (85300)
- Téléphone :
- 02 51 55 17 74
- Adressse :
- 4 Place du Champ de Foire
85300 Challans, France
