Maison neuve à
Landevieille
(85220) Référence :
NR2441560_3
Prix du projet : Maison avec Terrain
prix 215 900 €
- 2 pièces
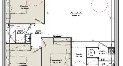
- 3 chambres
- Surface maison 61 m2
***** POUR VOS INVESTISSEMENTS TRES BON RAPPORT CONSULTEZ NOUS *****
Maison de 2 pièces (61 m²) à vendre à Landevieille
EMPLACEMENT PRIVILÉGIÉ - MAISON 2 PIÈCES NEUVE
En vente à 6 km de l'océan Atlantique et à 29 km de La Roche-sur-Yon, LMP Constructeur Saint-Gilles-Croix-de-Vie vous propose cette maison de 2 pièces de plain-pied de 61 m² bénéficiant d'un emplacement privilégié dans Landevieille (85220).
Conçue de plain-pied, elle est composée de trois chambres, d'une cuisine et d'une salle de bains. La maison est neuve.
Le terrain du bien s'étend sur 519 m².
La maison se trouve dans un secteur recherché. Il y a l'École Primaire Privée Notre Dame à moins de 10 minutes à pied. On trouve un commerce, une boulangerie et une épicerie dans les environs.
Elle est à vendre pour la somme de 215 900 €.
Contactez notre agence (RISSELIN Nicolas : 06-80-33-03-82) pour toute information sur la maison ou sur les démarches à suivre.
***** POUR VOS INVESTISSEMENTS TRES BON RAPPORT CONSULTEZ NOUS *****
Mentions légales
Terrain proposé par un partenaire foncier selon disponibilités et autorisation de publicité au prix de 75 000 €. Hors droit d'enregistrement et frais de notaire. Terrain + Maison proposés au prix de 215 900 € (Hors branchements et raccordements, papiers peints, peintures, revêtement de sol dans les chambres. Tarif modifiable sans préavis). Etiquette énergie : A. Différents modèles disponibles pour ce terrain. Assurances et garanties du constructeur (RC professionnelle, décennale, dommage ouvrage, garantie de remboursement de l'acompte, livraison à prix et délai convenu) : https://www.lmp-constructeur.com/mentions-legales/.Agence Logis du Marais Poitevin de Saint-Gilles-Croix-de-Vie (85800)
- Téléphone :
- 02 51 55 34 29
- Adressse :
- 5 rue Gautté
85800 Saint-Gilles-Croix-de-Vie, France
