Maison neuve à
Landevieille
(85220) Référence :
NR2441560_2
Prix du projet : Maison avec Terrain
prix 209 900 €
- 2 pièces
- 2 chambres
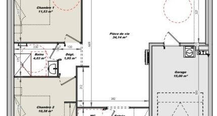
- Surface maison 61 m2
***** POUR VOS INVESTISSEMENTS TRES BON RAPPORT CONSULTEZ NOUS *****
Maison de 2 pièces (61 m²) en vente à Landevieille
EMPLACEMENT PRIVILÉGIÉ - MAISON 2 PIÈCES NEUVE
À vendre : à 6 km de la côte atlantique et à 29 km de La Roche-sur-Yon, nous sommes heureux de vous proposer cette maison de 2 pièces de plain-pied de 61 m² et de 519 m² de terrain bénéficiant d'un emplacement privilégié dans Landevieille (85220).
Son intérieur inclut deux chambres, une cuisine et une salle de bains. Cette maison est neuve.
La maison se situe dans un secteur prisé. L'École Primaire Privée Notre Dame est implantée à moins de 10 minutes à pied. Il y a un commerce, une boulangerie et une épicerie dans les environs.
Elle est à vendre pour la somme de 209 900 €.
N'hésitez pas à prendre contact avec notre agence (RISSELIN Nicolas : 06-80-33-03-82) pour plus d'informations sur la maison, sur les modalités de vente ou sur les démarches à suivre. Donnez vie à vos projets immobiliers avec LMP Constructeur Saint-Gilles-Croix-de-Vie.
***** POUR VOS INVESTISSEMENTS TRES BON RAPPORT CONSULTEZ NOUS *****
Mentions légales
Terrain proposé par un partenaire foncier selon disponibilités et autorisation de publicité au prix de 75 000 €. Hors droit d'enregistrement et frais de notaire. Terrain + Maison proposés au prix de 209 900 € (Hors branchements et raccordements, papiers peints, peintures, revêtement de sol dans les chambres. Tarif modifiable sans préavis). Etiquette énergie : A. Différents modèles disponibles pour ce terrain. Assurances et garanties du constructeur (RC professionnelle, décennale, dommage ouvrage, garantie de remboursement de l'acompte, livraison à prix et délai convenu) : https://www.lmp-constructeur.com/mentions-legales/.Agence Logis du Marais Poitevin de Saint-Gilles-Croix-de-Vie (85800)
- Téléphone :
- 02 51 55 34 29
- Adressse :
- 5 rue Gautté
85800 Saint-Gilles-Croix-de-Vie, France
