Maison neuve à
Landevieille
(85220) Référence :
NR2441560_1
Prix du projet : Maison avec Terrain
prix 199 900 €
- 2 pièces
- 2 chambres
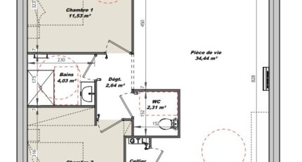
- Surface maison 61 m2
***** POUR VOS INVESTISSEMENTS TRES BON RAPPORT CONSULTEZ NOUS *****
Maison T2 (61 m²) en vente à Landevieille
EMPLACEMENT PRIVILÉGIÉ - MAISON 2 PIÈCES NEUVE
En vente : sur le littoral atlantique et à deux pas de La Roche-sur-Yon, venez découvrir cette maison de 2 pièces de plain-pied de 61 m², bénéficiant d'un emplacement privilégié dans Landevieille (85220).
Conçue de plain-pied, elle est composée de deux chambres, d'une cuisine et d'une salle de bains. La maison est neuve.
Le terrain du bien est de 519 m².
Cette maison se trouve dans un quartier convoité. Il y a l'École Primaire Privée Notre Dame à moins de 10 minutes à pied. On trouve un commerce, une boulangerie et une épicerie à proximité.
Elle est proposée à l'achat pour 199 900 €.
Contactez Nicolas RISSELIN (tél : 06-80-33-03-82) pour plus de renseignements sur la propriété, sur les démarches à suivre ou sur les modalités de vente. LMP Constructeur Saint-Gilles-Croix-de-Vie est là pour vous accompagner dans tous vos projets immobiliers.
***** POUR VOS INVESTISSEMENTS TRES BON RAPPORT CONSULTEZ NOUS *****
Mentions légales
Terrain proposé par un partenaire foncier selon disponibilités et autorisation de publicité au prix de 75 000 €. Hors droit d'enregistrement et frais de notaire. Terrain + Maison proposés au prix de 199 900 € (Hors branchements et raccordements, papiers peints, peintures, revêtement de sol dans les chambres. Tarif modifiable sans préavis). Etiquette énergie : A. Différents modèles disponibles pour ce terrain. Assurances et garanties du constructeur (RC professionnelle, décennale, dommage ouvrage, garantie de remboursement de l'acompte, livraison à prix et délai convenu) : https://www.lmp-constructeur.com/mentions-legales/.Agence Logis du Marais Poitevin de Saint-Gilles-Croix-de-Vie (85800)
- Téléphone :
- 02 51 55 34 29
- Adressse :
- 5 rue Gautté
85800 Saint-Gilles-Croix-de-Vie, France
