Maison neuve à
Landevieille
(85220) Référence :
NR2441500_3
Prix du projet : Maison avec Terrain
prix 214 900 €
- 2 pièces
- 2 chambres
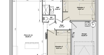
- Surface maison 61 m2
Landevieille : maison F2 (61 m²) à vendre
IDÉALEMENT SITUÉE - MAISON 2 PIÈCES NEUVE
En vente : située à 6 km de la côte atlantique et à deux pas de La Roche-sur-Yon, idéalement située dans Landevieille (85220), LMP Constructeur Saint-Gilles-Croix-de-Vie vous présente cette maison de 2 pièces de plain-pied de 61 m².
Son intérieur comporte deux chambres, une cuisine et une salle de bains. Cette maison est neuve.
Le terrain de la propriété s'étend sur 629 m².
La maison se situe dans un secteur prisé. Il y a l'École Primaire Privée Notre Dame à moins de 10 minutes à pied. On trouve un commerce, une boulangerie et une épicerie dans les environs.
Son prix de vente est de 214 900 €.
N'hésitez pas à prendre contact avec notre agence (Nicolas RISSELIN : 06-80-33-03-82) pour plus d'informations sur le bien ou sur les démarches à suivre.
Mentions légales
Terrain proposé par un partenaire foncier selon disponibilités et autorisation de publicité au prix de 89 000 €. Hors droit d'enregistrement et frais de notaire. Terrain + Maison proposés au prix de 214 900 € (Hors branchements et raccordements, papiers peints, peintures, revêtement de sol dans les chambres. Tarif modifiable sans préavis). Etiquette énergie : A. Différents modèles disponibles pour ce terrain. Assurances et garanties du constructeur (RC professionnelle, décennale, dommage ouvrage, garantie de remboursement de l'acompte, livraison à prix et délai convenu) : https://www.lmp-constructeur.com/mentions-legales/.Agence Logis du Marais Poitevin de Saint-Gilles-Croix-de-Vie (85800)
- Téléphone :
- 02 51 55 34 29
- Adressse :
- 5 rue Gautté
85800 Saint-Gilles-Croix-de-Vie, France
