Maison neuve à
Landevieille
(85220) Référence :
NR2441500_2
Prix du projet : Maison avec Terrain
prix 202 900 €
- 2 pièces
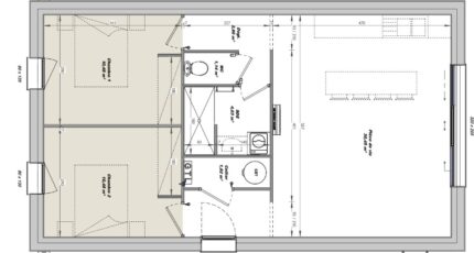
- 2 chambres
- Surface maison 61 m2
VENTE : maison F2 (61 m²) à Landevieille
IDÉALEMENT SITUÉE - MAISON 2 PIÈCES NEUVE
En vente : localisée à 6 km de la côte atlantique et à deux pas de La Roche-sur-Yon, idéalement située dans Landevieille (85220), votre agence LMP Constructeur Saint-Gilles-Croix-de-Vie est heureuse de vous présenter cette maison de 2 pièces de plain-pied de 61 m² et de 629 m² de terrain.
Conçue de plain-pied, elle est composée de deux chambres, d'une cuisine et d'une salle de bains. La maison est neuve.
La maison se situe dans un secteur attractif. On trouve l'École Primaire Privée Notre Dame à moins de 10 minutes à pied. Il y a un commerce, une boulangerie et une épicerie à quelques minutes à peine.
Son prix de vente est de 202 900 €.
Prenez contact avec notre agence (RISSELIN Nicolas : 06-80-33-03-82) pour toute question sur la maison ou sur les modalités de vente. Donnez vie à vos projets immobiliers avec LMP Constructeur Saint-Gilles-Croix-de-Vie.
Mentions légales
Terrain proposé par un partenaire foncier selon disponibilités et autorisation de publicité au prix de 89 000 €. Hors droit d'enregistrement et frais de notaire. Terrain + Maison proposés au prix de 202 900 € (Hors branchements et raccordements, papiers peints, peintures, revêtement de sol dans les chambres. Tarif modifiable sans préavis). Etiquette énergie : A. Différents modèles disponibles pour ce terrain. Assurances et garanties du constructeur (RC professionnelle, décennale, dommage ouvrage, garantie de remboursement de l'acompte, livraison à prix et délai convenu) : https://www.lmp-constructeur.com/mentions-legales/.Agence Logis du Marais Poitevin de Saint-Gilles-Croix-de-Vie (85800)
- Téléphone :
- 02 51 55 34 29
- Adressse :
- 5 rue Gautté
85800 Saint-Gilles-Croix-de-Vie, France
