Maison neuve à
Landevieille
(85220) Référence :
NR2415003_3
Prix du projet : Maison avec Terrain
prix 208 900 €
- 2 pièces
- 2 chambres
- Surface maison 61 m2
Landevieille : maison de 2 pièces (61 m²) en vente
IDÉALEMENT SITUÉE - MAISON 2 PIÈCES NEUVE
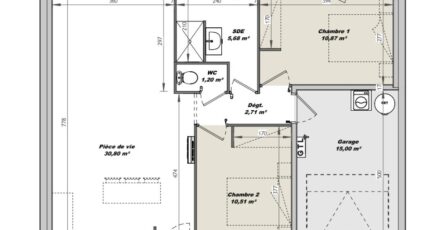
À vendre : à 6 km de la côte atlantique et à quelques kilomètres de La Roche-sur-Yon, nous sommes ravis de vous proposer cette maison de 2 pièces de plain-pied de 61 m² et de 400 m² de terrain, idéalement située dans Landevieille (85220). Son intérieur propose deux chambres, une cuisine et une salle de bains.
Cette maison est neuve.
La maison est située dans un quartier convoité. Il y a l'École Primaire Privée Notre Dame à moins de 10 minutes à pied. On trouve un commerce, une boulangerie et une épicerie dans les environs.
Elle est à vendre pour la somme de 208 900 €.
Contactez notre agence (RISSELIN Nicolas : 06-80-33-03-82) pour obtenir de plus amples renseignements sur la propriété, sur les modalités de vente ou sur les démarches à suivre. LMP Constructeur Saint-Gilles-Croix-de-Vie vous accompagne dans tous vos projets immobiliers et dans toutes vos démarches.
Mentions légales
Terrain proposé par un partenaire foncier selon disponibilités et autorisation de publicité au prix de 75 001 €. Hors droit d'enregistrement et frais de notaire. Terrain + Maison proposés au prix de 208 900 € (Hors branchements et raccordements, papiers peints, peintures, revêtement de sol dans les chambres. Tarif modifiable sans préavis). Etiquette énergie : A. Différents modèles disponibles pour ce terrain. Assurances et garanties du constructeur (RC professionnelle, décennale, dommage ouvrage, garantie de remboursement de l'acompte, livraison à prix et délai convenu) : https://www.lmp-constructeur.com/mentions-legales/.Agence Logis du Marais Poitevin de Saint-Gilles-Croix-de-Vie (85800)
- Téléphone :
- 02 51 55 34 29
- Adressse :
- 5 rue Gautté
85800 Saint-Gilles-Croix-de-Vie, France
