Maison neuve à
Landevieille
(85220) Référence :
NR2415003_1
Prix du projet : Maison avec Terrain
prix 174 900 €
- 2 pièces
- 1 chambre
- Surface maison 50 m2
VENTE d'une maison F2 (50 m²) à Landevieille
IDÉALEMENT SITUÉE - MAISON 2 PIÈCES NEUVE
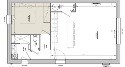
Sur le littoral atlantique et à 29 km de La Roche-sur-Yon, en vente idéalement située dans Landevieille (85220), votre agence LMP Constructeur Saint-Gilles-Croix-de-Vie est heureuse de vous proposer cette maison de 2 pièces de plain-pied de 50 m² et de 400 m² de terrain. Conçue de plain-pied, elle inclut une chambre, une cuisine et une salle de bains.
Cette maison est neuve.
Cette maison se situe dans un quartier prisé. Il y a l'École Primaire Privée Notre Dame à moins de 10 minutes à pied. On trouve un commerce, une boulangerie et une épicerie à quelques minutes de la maison.
Son prix de vente est de 174 900 €.
Contactez Nicolas RISSELIN (tél : 06-80-33-03-82) pour toute question sur la maison. LMP Constructeur Saint-Gilles-Croix-de-Vie est là pour vous accompagner à toutes les étapes de votre projet.
Mentions légales
Terrain proposé par un partenaire foncier selon disponibilités et autorisation de publicité au prix de 75 001 €. Hors droit d'enregistrement et frais de notaire. Terrain + Maison proposés au prix de 174 900 € (Hors branchements et raccordements, papiers peints, peintures, revêtement de sol dans les chambres. Tarif modifiable sans préavis). Etiquette énergie : A. Différents modèles disponibles pour ce terrain. Assurances et garanties du constructeur (RC professionnelle, décennale, dommage ouvrage, garantie de remboursement de l'acompte, livraison à prix et délai convenu) : https://www.lmp-constructeur.com/mentions-legales/.Agence Logis du Marais Poitevin de Saint-Gilles-Croix-de-Vie (85800)
- Téléphone :
- 02 51 55 34 29
- Adressse :
- 5 rue Gautté
85800 Saint-Gilles-Croix-de-Vie, France
