Maison neuve à
L'Aiguillon-sur-Vie
(85220) Référence :
NR2355414_2
Prix du projet : Maison avec Terrain
prix 219 900 €
- 2 pièces
- 2 chambres
- Surface maison 61 m2
***** A SEULEMENT 10 MINUTES DE SAINT GILLES CROIX DE VIE *****
Maison F2 (61 m²) en vente à L'Aiguillon-sur-Vie
IDÉALEMENT SITUÉE - MAISON 2 PIÈCES NEUVE
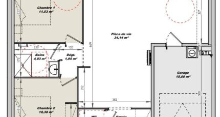
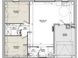
Sur le littoral atlantique, à vendre idéalement située dans L'Aiguillon-sur-Vie (85220), LMP Constructeur Challans vous propose cette maison de 2 pièces de plain-pied de 61 m² et de 400 m² de terrain.
Elle offre deux chambres, une cuisine et une salle de bains. Cette maison est neuve.
La maison est située dans un quartier attractif. Il y a l'École Primaire Privée Saint Joseph à moins de 10 minutes à pied. Côté transports, on trouve la gare Saint-Gilles-Croix-de-Vie à moins de 10 minutes en voiture. Il y a un tennis, trois commerces, deux boulangeries et une épicerie dans les environs.
Elle est proposée à l'achat pour 219 900 €.
Contactez notre agence (RISSELIN Nicolas : 06-80-33-03-82) pour plus de renseignements sur la maison.
***** A SEULEMENT 10 MINUTES DE SAINT GILLES CROIX DE VIE *****
Mentions légales
Terrain proposé par un partenaire foncier selon disponibilités et autorisation de publicité au prix de 76 900 €. Hors droit d'enregistrement et frais de notaire. Terrain + Maison proposés au prix de 143 000 € (Hors branchements et raccordements, papiers peints, peintures, revêtement de sol dans les chambres. Tarif modifiable sans préavis). Etiquette énergie : A. Différents modèles disponibles pour ce terrain. Assurances et garanties du constructeur (RC professionnelle, décennale, dommage ouvrage, garantie de remboursement de l'acompte, livraison à prix et délai convenu) : https://www.lmp-constructeur.com/mentions-legales/.Agence Logis du Marais Poitevin de Challans (85300)
- Téléphone :
- 02 51 55 17 74
- Adressse :
- 4 Place du Champ de Foire
85300 Challans, France
