Maison neuve à
La Chaize-Giraud
(85220) Référence :
NR2425219_3
Prix du projet : Maison avec Terrain
prix 175 900 €
- 2 pièces
- 2 chambres
- Surface maison 61 m2
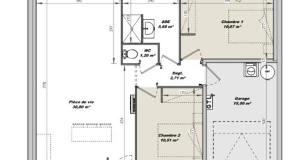
VENTE : maison F2 (61 m²) à La Chaize-Giraud
PROCHE DE LA ROCHE-SUR-YON - MAISON 2 PIÈCES NEUVE
À 5 km de la côte atlantique et à deux pas de La Roche-sur-Yon, votre agence LMP Constructeur Saint-Gilles-Croix-de-Vie est ravie de vous présenter cette maison de 2 pièces de plain-pied de 61 m² et de 219 m² de terrain en vente à La Chaize-Giraud (85220).
Conçue de plain-pied, elle dispose de deux chambres, d'une cuisine et d'une salle de bains. La maison est neuve.
Il y a une épicerie à quelques minutes à peine.
Elle est à vendre pour la somme de 175 900 €.
N'hésitez pas à prendre contact avec notre agence (RISSELIN Nicolas : 06-80-33-03-82) pour tout renseignement sur la maison. LMP Constructeur Saint-Gilles-Croix-de-Vie est là pour vous accompagner à toutes les étapes de votre projet.
Mentions légales
Terrain proposé par un partenaire foncier selon disponibilités et autorisation de publicité au prix de 45 000 €. Hors droit d'enregistrement et frais de notaire. Terrain + Maison proposés au prix de 175 900 € (Hors branchements et raccordements, papiers peints, peintures, revêtement de sol dans les chambres. Tarif modifiable sans préavis). Etiquette énergie : A. Différents modèles disponibles pour ce terrain. Assurances et garanties du constructeur (RC professionnelle, décennale, dommage ouvrage, garantie de remboursement de l'acompte, livraison à prix et délai convenu) : https://www.lmp-constructeur.com/mentions-legales/.Agence Logis du Marais Poitevin de Saint-Gilles-Croix-de-Vie (85800)
- Téléphone :
- 02 51 55 34 29
- Adressse :
- 5 rue Gautté
85800 Saint-Gilles-Croix-de-Vie, France
