Maison neuve à
La Chaize-Giraud
(85220) Référence :
NR2425219_1
Prix du projet : Maison avec Terrain
prix 142 900 €
- 2 pièces
- 1 chambre
- Surface maison 50 m2
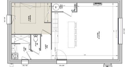
VENTE d'une maison T2 (50 m²) à La Chaize-Giraud
MAISON 2 PIÈCES NEUVE - PROCHE DE LA ROCHE-SUR-YON
En vente : sur la côte atlantique et à deux pas de La Roche-sur-Yon, nous sommes heureux de vous présenter à La Chaize-Giraud (85220), cette maison de 2 pièces de plain-pied de 50 m². Elle propose une chambre, une cuisine et une salle de bains.
Le terrain de la propriété est de 219 m².
Cette maison est neuve.
Il y a une épicerie dans les environs.
Elle est proposée à l'achat pour 142 900 €.
Prenez contact avec Nicolas RISSELIN (06-80-33-03-82) pour toute question sur la maison ou sur les démarches à suivre.
Mentions légales
Terrain proposé par un partenaire foncier selon disponibilités et autorisation de publicité au prix de 45 000 €. Hors droit d'enregistrement et frais de notaire. Terrain + Maison proposés au prix de 142 900 € (Hors branchements et raccordements, papiers peints, peintures, revêtement de sol dans les chambres. Tarif modifiable sans préavis). Etiquette énergie : A. Différents modèles disponibles pour ce terrain. Assurances et garanties du constructeur (RC professionnelle, décennale, dommage ouvrage, garantie de remboursement de l'acompte, livraison à prix et délai convenu) : https://www.lmp-constructeur.com/mentions-legales/.Agence Logis du Marais Poitevin de Saint-Gilles-Croix-de-Vie (85800)
- Téléphone :
- 02 51 55 34 29
- Adressse :
- 5 rue Gautté
85800 Saint-Gilles-Croix-de-Vie, France
