Maison neuve à
Givrand
(85800) Référence :
NR2459851_4
Prix du projet : Maison avec Terrain
prix 234 900 €
- 2 pièces
- 3 chambres
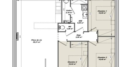
- Surface maison 79 m2
VENTE d'une maison T2 (79 m²) à Givrand
IDÉALEMENT SITUÉE - MAISON 2 PIÈCES NEUVE
Sur le littoral atlantique, en vente idéalement située dans Givrand (85800), nous vous présentons cette maison de 2 pièces de plain-pied de 79 m² et de 310 m² de terrain. Son intérieur offre trois chambres, une cuisine et une salle de bains.
Cette maison est neuve.
Cette maison est située dans un secteur recherché. On trouve l'École Primaire Privée la Fontaine à moins de 10 minutes à pied. Côté transports en commun, il y a les gares Saint-Gilles-Croix-de-Vie et Saint-Hilaire-de-Riez à moins de 10 minutes en voiture. On trouve un commerce dans les environs.
Son prix de vente est de 234 900 €.
N'hésitez pas à prendre contact avec Nicolas RISSELIN (06-80-33-03-82) pour obtenir de plus amples informations sur la maison. LMP Constructeur Saint-Gilles-Croix-de-Vie est là pour vous accompagner dans tous vos projets immobiliers.
Mentions légales
Terrain proposé par un partenaire foncier selon disponibilités et autorisation de publicité au prix de 97 200 €. Hors droit d'enregistrement et frais de notaire. Terrain + Maison proposés au prix de 234 900 € (Hors branchements et raccordements, papiers peints, peintures, revêtement de sol dans les chambres. Tarif modifiable sans préavis). Etiquette énergie : A. Différents modèles disponibles pour ce terrain. Assurances et garanties du constructeur (RC professionnelle, décennale, dommage ouvrage, garantie de remboursement de l'acompte, livraison à prix et délai convenu) : https://www.lmp-constructeur.com/mentions-legales/.Agence Logis du Marais Poitevin de Saint-Gilles-Croix-de-Vie (85800)
- Téléphone :
- 02 51 55 34 29
- Adressse :
- 5 rue Gautté
85800 Saint-Gilles-Croix-de-Vie, France
