Maison neuve à
Givrand
(85800) Référence :
NR2459851_3
Prix du projet : Maison avec Terrain
prix 231 900 €
- 2 pièces
- 2 chambres
- Surface maison 61 m2
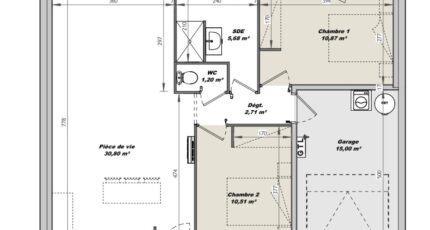
Maison F2 (61 m²) en vente à Givrand
IDÉALEMENT SITUÉE - MAISON 2 PIÈCES NEUVE
En vente sur la côte atlantique, idéalement située dans Givrand (85800), LMP Constructeur Saint-Gilles-Croix-de-Vie vous propose cette maison de 2 pièces de plain-pied de 61 m² et de 310 m² de terrain.
Conçue de plain-pied, elle compte deux chambres, une cuisine et une salle de bains. Cette maison est neuve.
Le bien se situe dans un quartier recherché. L'École Primaire Privée la Fontaine est implantée à moins de 10 minutes à pied. Niveau transports, il y a les gares Saint-Gilles-Croix-de-Vie et Saint-Hilaire-de-Riez à moins de 10 minutes en voiture. On trouve un commerce à quelques minutes.
Il est proposé à l'achat pour 231 900 €.
Prenez contact avec Nicolas RISSELIN (tél : 06-80-33-03-82) pour plus d'informations sur la maison ou sur les modalités de vente. LMP Constructeur Saint-Gilles-Croix-de-Vie vous accompagne dans toutes vos démarches et à toutes les étapes de l'achat.
Mentions légales
Terrain proposé par un partenaire foncier selon disponibilités et autorisation de publicité au prix de 97 200 €. Hors droit d'enregistrement et frais de notaire. Terrain + Maison proposés au prix de 231 900 € (Hors branchements et raccordements, papiers peints, peintures, revêtement de sol dans les chambres. Tarif modifiable sans préavis). Etiquette énergie : A. Différents modèles disponibles pour ce terrain. Assurances et garanties du constructeur (RC professionnelle, décennale, dommage ouvrage, garantie de remboursement de l'acompte, livraison à prix et délai convenu) : https://www.lmp-constructeur.com/mentions-legales/.Agence Logis du Marais Poitevin de Saint-Gilles-Croix-de-Vie (85800)
- Téléphone :
- 02 51 55 34 29
- Adressse :
- 5 rue Gautté
85800 Saint-Gilles-Croix-de-Vie, France
