Maison neuve à
Givrand
(85800) Référence :
NR2459851_1
Prix du projet : Maison avec Terrain
prix 198 900 €
- 2 pièces
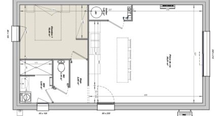
- 1 chambre
- Surface maison 50 m2
VENTE : maison de 2 pièces (50 m²) à Givrand
IDÉALEMENT SITUÉE - MAISON 2 PIÈCES NEUVE
En vente : située sur la côte atlantique, LMP Constructeur Saint-Gilles-Croix-de-Vie vous propose cette maison de 2 pièces de plain-pied de 50 m² et de 310 m² de terrain, idéalement située dans Givrand (85800). Conçue de plain-pied, elle est composée d'une chambre, d'une cuisine et d'une salle de bains.
La maison est neuve.
Cette propriété se situe dans un quartier prisé. L'École Primaire Privée la Fontaine se trouve à moins de 10 minutes à pied. Niveau transports en commun, il y a deux gares (Saint-Gilles-Croix-de-Vie et Saint-Hilaire-de-Riez) à moins de 10 minutes en voiture. On trouve un commerce à proximité.
Elle est proposée à l'achat pour 198 900 €.
Prenez contact avec notre agence (RISSELIN Nicolas : 06-80-33-03-82) pour toute question sur la maison, sur les modalités de vente ou sur les démarches à suivre. LMP Constructeur Saint-Gilles-Croix-de-Vie vous accompagne dans tous vos projets immobiliers et à toutes les étapes de l'achat.
Mentions légales
Terrain proposé par un partenaire foncier selon disponibilités et autorisation de publicité au prix de 97 200 €. Hors droit d'enregistrement et frais de notaire. Terrain + Maison proposés au prix de 198 900 € (Hors branchements et raccordements, papiers peints, peintures, revêtement de sol dans les chambres. Tarif modifiable sans préavis). Etiquette énergie : A. Différents modèles disponibles pour ce terrain. Assurances et garanties du constructeur (RC professionnelle, décennale, dommage ouvrage, garantie de remboursement de l'acompte, livraison à prix et délai convenu) : https://www.lmp-constructeur.com/mentions-legales/.Agence Logis du Marais Poitevin de Saint-Gilles-Croix-de-Vie (85800)
- Téléphone :
- 02 51 55 34 29
- Adressse :
- 5 rue Gautté
85800 Saint-Gilles-Croix-de-Vie, France
