Maison neuve à
Givrand
(85800) Référence :
NR2452754_3
Prix du projet : Maison avec Terrain
prix 228 900 €
- 2 pièces
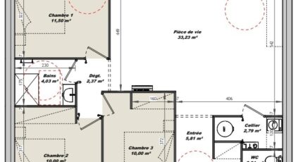
- 3 chambres
- Surface maison 61 m2
*** IDEAL POUR VOS INVESTISSEMENTS *** TRES BON RAPPORT ****
Givrand : maison de 2 pièces (61 m²) en vente
EMPLACEMENT PRIVILÉGIÉ - MAISON 2 PIÈCES NEUVE
À 4 km de l'océan Atlantique, nous sommes ravis de vous présenter cette maison de 2 pièces de plain-pied de 61 m² et de 300 m² de terrain en vente, bénéficiant d'un emplacement privilégié dans Givrand (85800).
Elle propose trois chambres, une cuisine et une salle de bains. Cette maison est neuve.
La maison est située dans un quartier recherché. L'École Primaire Privée la Fontaine se trouve à moins de 10 minutes à pied. Côté transports, il y a les gares Saint-Gilles-Croix-de-Vie et Saint-Hilaire-de-Riez à moins de 10 minutes en voiture. On trouve un commerce dans les environs.
Son prix de vente est de 228 900 €.
N'hésitez pas à prendre contact avec notre agence (RISSELIN Nicolas : 06-80-33-03-82) pour tout renseignement sur la propriété ou sur les démarches à suivre.
*** IDEAL POUR VOS INVESTISSEMENTS *** TRES BON RAPPORT ****
Mentions légales
Terrain proposé par un partenaire foncier selon disponibilités et autorisation de publicité au prix de 80 200 €. Hors droit d'enregistrement et frais de notaire. Terrain + Maison proposés au prix de 228 900 € (Hors branchements et raccordements, papiers peints, peintures, revêtement de sol dans les chambres. Tarif modifiable sans préavis). Etiquette énergie : A. Différents modèles disponibles pour ce terrain. Assurances et garanties du constructeur (RC professionnelle, décennale, dommage ouvrage, garantie de remboursement de l'acompte, livraison à prix et délai convenu) : https://www.lmp-constructeur.com/mentions-legales/.Agence Logis du Marais Poitevin de Saint-Gilles-Croix-de-Vie (85800)
- Téléphone :
- 02 51 55 34 29
- Adressse :
- 5 rue Gautté
85800 Saint-Gilles-Croix-de-Vie, France
