Maison neuve à
Givrand
(85800) Référence :
NR2452754_2
Prix du projet : Maison avec Terrain
prix 222 900 €
- 2 pièces
- 2 chambres
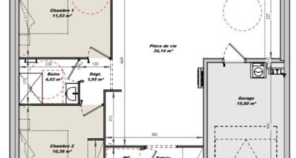
- Surface maison 61 m2
*** IDEAL POUR VOS INVESTISSEMENTS *** TRES BON RAPPORT ****
Givrand : maison de 2 pièces (61 m²) à vendre
EMPLACEMENT PRIVILÉGIÉ - MAISON 2 PIÈCES NEUVE
À 4 km de la côte atlantique, nous sommes ravis de vous proposer cette maison de 2 pièces de plain-pied de 61 m² bénéficiant d'un emplacement privilégié dans Givrand (85800). Son intérieur propose deux chambres, une cuisine et une salle de bains.
Le terrain du bien s'étend sur 300 m².
La maison est neuve.
Cette maison est située dans un quartier recherché. L'École Primaire Privée la Fontaine est implantée à moins de 10 minutes à pied. Côté transports, on trouve les gares Saint-Gilles-Croix-de-Vie et Saint-Hilaire-de-Riez à moins de 10 minutes en voiture. Il y a un commerce à quelques minutes du logement.
Son prix de vente est de 222 900 €.
N'hésitez pas à prendre contact avec notre agence (RISSELIN Nicolas : 06-80-33-03-82) pour toute question sur la propriété. LMP Constructeur Saint-Gilles-Croix-de-Vie est là pour vous accompagner dans toutes vos démarches.
*** IDEAL POUR VOS INVESTISSEMENTS *** TRES BON RAPPORT ****
Mentions légales
Terrain proposé par un partenaire foncier selon disponibilités et autorisation de publicité au prix de 80 200 €. Hors droit d'enregistrement et frais de notaire. Terrain + Maison proposés au prix de 222 900 € (Hors branchements et raccordements, papiers peints, peintures, revêtement de sol dans les chambres. Tarif modifiable sans préavis). Etiquette énergie : A. Différents modèles disponibles pour ce terrain. Assurances et garanties du constructeur (RC professionnelle, décennale, dommage ouvrage, garantie de remboursement de l'acompte, livraison à prix et délai convenu) : https://www.lmp-constructeur.com/mentions-legales/.Agence Logis du Marais Poitevin de Saint-Gilles-Croix-de-Vie (85800)
- Téléphone :
- 02 51 55 34 29
- Adressse :
- 5 rue Gautté
85800 Saint-Gilles-Croix-de-Vie, France
