Maison neuve à
Givrand
(85800) Référence :
NR2452123_3
Prix du projet : Maison avec Terrain
prix 204 900 €
- 2 pièces
- 2 chambres
- Surface maison 61 m2
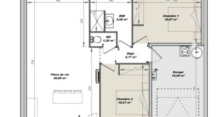
VENTE d'une maison F2 (61 m²) à Givrand
EMPLACEMENT PRIVILÉGIÉ - MAISON 2 PIÈCES NEUVE
En vente : située à 4 km de l'océan Atlantique, nous vous proposons cette maison de 2 pièces de plain-pied de 61 m² et de 273 m² de terrain, bénéficiant d'un emplacement privilégié dans Givrand (85800).
Elle est composée de deux chambres, d'une cuisine et d'une salle de bains. Cette maison est neuve.
La maison se trouve dans un secteur recherché. L'École Primaire Privée la Fontaine est implantée à moins de 10 minutes à pied. Côté transports en commun, on trouve les gares Saint-Gilles-Croix-de-Vie et Saint-Hilaire-de-Riez à moins de 10 minutes en voiture. Il y a un commerce à quelques minutes.
Elle est proposée à l'achat pour 204 900 €.
Prenez contact avec notre agence (Nicolas RISSELIN : 06-80-33-03-82) pour tout renseignement sur la propriété, sur les démarches à suivre ou sur les modalités de vente. LMP Constructeur Saint-Gilles-Croix-de-Vie vous accompagne dans tous vos projets immobiliers et à toutes les étapes de votre projet.
Mentions légales
Terrain proposé par un partenaire foncier selon disponibilités et autorisation de publicité au prix de 72 200 €. Hors droit d'enregistrement et frais de notaire. Terrain + Maison proposés au prix de 204 900 € (Hors branchements et raccordements, papiers peints, peintures, revêtement de sol dans les chambres. Tarif modifiable sans préavis). Etiquette énergie : A. Différents modèles disponibles pour ce terrain. Assurances et garanties du constructeur (RC professionnelle, décennale, dommage ouvrage, garantie de remboursement de l'acompte, livraison à prix et délai convenu) : https://www.lmp-constructeur.com/mentions-legales/.Agence Logis du Marais Poitevin de Saint-Gilles-Croix-de-Vie (85800)
- Téléphone :
- 02 51 55 34 29
- Adressse :
- 5 rue Gautté
85800 Saint-Gilles-Croix-de-Vie, France
