Maison neuve à
Givrand
(85800) Référence :
NR2452123_1
Prix du projet : Maison avec Terrain
prix 171 900 €
- 2 pièces
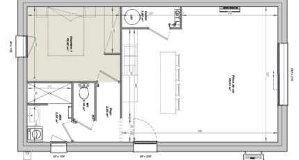
- 1 chambre
- Surface maison 50 m2
VENTE : maison F2 (50 m²) à Givrand
EMPLACEMENT PRIVILÉGIÉ - MAISON 2 PIÈCES NEUVE
En vente : localisée sur le littoral atlantique, nous vous présentons cette maison de 2 pièces de plain-pied de 50 m², bénéficiant d'un emplacement privilégié dans Givrand (85800).
Elle est composée d'une chambre, d'une cuisine et d'une salle de bains. Cette maison est neuve.
Le terrain du bien est de 273 m².
La maison se trouve dans un quartier attractif. Il y a l'École Primaire Privée la Fontaine à moins de 10 minutes à pied. Niveau transports, on trouve les gares Saint-Gilles-Croix-de-Vie et Saint-Hilaire-de-Riez à moins de 10 minutes en voiture. Il y a un commerce dans les environs.
Son prix de vente est de 171 900 €.
Contactez notre agence (RISSELIN Nicolas : 06-80-33-03-82) pour obtenir de plus amples informations sur la propriété. LMP Constructeur Saint-Gilles-Croix-de-Vie vous accompagne à toutes les étapes de votre projet et dans tous vos projets immobiliers.
Mentions légales
Terrain proposé par un partenaire foncier selon disponibilités et autorisation de publicité au prix de 72 200 €. Hors droit d'enregistrement et frais de notaire. Terrain + Maison proposés au prix de 171 900 € (Hors branchements et raccordements, papiers peints, peintures, revêtement de sol dans les chambres. Tarif modifiable sans préavis). Etiquette énergie : A. Différents modèles disponibles pour ce terrain. Assurances et garanties du constructeur (RC professionnelle, décennale, dommage ouvrage, garantie de remboursement de l'acompte, livraison à prix et délai convenu) : https://www.lmp-constructeur.com/mentions-legales/.Agence Logis du Marais Poitevin de Saint-Gilles-Croix-de-Vie (85800)
- Téléphone :
- 02 51 55 34 29
- Adressse :
- 5 rue Gautté
85800 Saint-Gilles-Croix-de-Vie, France
