Maison neuve à
Givrand
(85800) Référence :
NR2398324_1
Prix du projet : Maison avec Terrain
prix 224 900 €
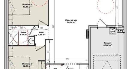
- 2 pièces
- 2 chambres
- Surface maison 61 m2
***** POUR VOS INVESTISSEMENTS TRES BON RAPPORT CONSULTEZ NOUS *****
VENTE : maison T2 (61 m²) à Givrand
EMPLACEMENT PRIVILÉGIÉ - MAISON 2 PIÈCES NEUVE
En vente : située à 4 km de l'océan Atlantique, nous vous présentons cette maison de 2 pièces de plain-pied de 61 m² et de 287 m² de terrain bénéficiant d'un emplacement d'exception dans Givrand (85800).
Conçue de plain-pied, elle compte deux chambres, une cuisine et une salle de bains. La maison est neuve.
Ce bien est situé dans un secteur attractif. L'École Primaire Privée la Fontaine est implantée à moins de 10 minutes à pied. Niveau transports en commun, il y a deux gares (Saint-Gilles-Croix-de-Vie et Saint-Hilaire-de-Riez) à moins de 10 minutes en voiture. On trouve une boulangerie et un commerce à quelques minutes de la maison.
Son prix de vente est de 224 900 €.
Contactez Nicolas RISSELIN (06-80-33-03-82) pour toute information sur la maison ou sur les démarches à suivre. LMP Constructeur Saint-Gilles-Croix-de-Vie vous accompagne dans tous vos projets immobiliers et dans toutes vos démarches.
***** POUR VOS INVESTISSEMENTS TRES BON RAPPORT CONSULTEZ NOUS *****
Mentions légales
Terrain proposé par un partenaire foncier selon disponibilités et autorisation de publicité au prix de 79 900 €. Hors droit d'enregistrement et frais de notaire. Terrain + Maison proposés au prix de 224 900 € (Hors branchements et raccordements, papiers peints, peintures, revêtement de sol dans les chambres. Tarif modifiable sans préavis). Etiquette énergie : A. Différents modèles disponibles pour ce terrain. Assurances et garanties du constructeur (RC professionnelle, décennale, dommage ouvrage, garantie de remboursement de l'acompte, livraison à prix et délai convenu) : https://www.lmp-constructeur.com/mentions-legales/.Agence Logis du Marais Poitevin de Saint-Gilles-Croix-de-Vie (85800)
- Téléphone :
- 02 51 55 34 29
- Adressse :
- 5 rue Gautté
85800 Saint-Gilles-Croix-de-Vie, France
