Maison neuve à
Givrand
(85800) Référence :
NR2377271_2
Prix du projet : Maison avec Terrain
prix 202 900 €
- 2 pièces
- 2 chambres
- Surface maison 61 m2
***** A SEULEMENT 5 MINUTES DE ST GILLES X DE VIE *****
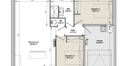
VENTE d'une maison F2 (61 m²) à Givrand
MAISON 2 PIÈCES NEUVE
En vente : située sur le littoral atlantique, notre agence LMP Constructeur Challans est heureuse de vous proposer cette maison de 2 pièces de plain-pied de 61 m² à Givrand (85800). Son intérieur est composé de deux chambres, d'une cuisine et d'une salle de bains.
Le terrain du bien s'étend sur 274 m².
La maison est neuve.
Il y a l'École Primaire Privée la Fontaine à moins de 10 minutes à pied. Niveau transports en commun, on trouve deux gares (Saint-Gilles-Croix-de-Vie et Saint-Hilaire-de-Riez) à moins de 10 minutes en voiture. Il y a une boulangerie et un commerce à proximité de la maison.
Son prix de vente est de 202 900 €.
Contactez Nicolas RISSELIN (06-80-33-03-82) pour plus de renseignements sur cette maison, sur les modalités de vente ou sur les démarches à suivre.
***** A SEULEMENT 5 MINUTES DE ST GILLES X DE VIE *****
Mentions légales
Terrain proposé par un partenaire foncier selon disponibilités et autorisation de publicité au prix de 73 000 €. Hors droit d'enregistrement et frais de notaire. Terrain + Maison proposés au prix de 202 900 € (Hors branchements et raccordements, papiers peints, peintures, revêtement de sol dans les chambres. Tarif modifiable sans préavis). Etiquette énergie : A. Différents modèles disponibles pour ce terrain. Assurances et garanties du constructeur (RC professionnelle, décennale, dommage ouvrage, garantie de remboursement de l'acompte, livraison à prix et délai convenu) : https://www.lmp-constructeur.com/mentions-legales/.Agence Logis du Marais Poitevin de Challans (85300)
- Téléphone :
- 02 51 55 17 74
- Adressse :
- 4 Place du Champ de Foire
85300 Challans, France
