Maison neuve à
Givrand
(85800) Référence :
NR2377271_1
Prix du projet : Maison avec Terrain
prix 179 900 €
- 2 pièces
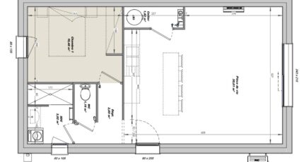
- 1 chambre
- Surface maison 50 m2
***** A SEULEMENT 5 MINUTES DU CENTRE DE ST GILLES X DE VIE *****
Givrand : maison T2 (50 m²) à vendre
MAISON 2 PIÈCES NEUVE
À vendre : sur la côte atlantique, LMP Constructeur Challans vous propose à Givrand (85800), cette maison de 2 pièces de plain-pied de 50 m².
Elle inclut une chambre, une cuisine et une salle de bains. La maison est neuve.
Le terrain du bien s'étend sur 274 m².
Il y a l'École Primaire Privée la Fontaine à moins de 10 minutes à pied. Niveau transports en commun, on trouve les gares Saint-Gilles-Croix-de-Vie et Saint-Hilaire-de-Riez à moins de 10 minutes en voiture. Il y a une boulangerie et un commerce à proximité.
Son prix de vente est de 179 900 €.
N'hésitez pas à prendre contact avec notre agence (RISSELIN Nicolas : 06-80-33-03-82) pour tout renseignement sur cette maison ou sur les modalités de vente.
***** A SEULEMENT 5 MINUTES DU CENTRE DE ST GILLES X DE VIE *****
Mentions légales
Terrain proposé par un partenaire foncier selon disponibilités et autorisation de publicité au prix de 73 000 €. Hors droit d'enregistrement et frais de notaire. Terrain + Maison proposés au prix de 106 900 € (Hors branchements et raccordements, papiers peints, peintures, revêtement de sol dans les chambres. Tarif modifiable sans préavis). Etiquette énergie : A. Différents modèles disponibles pour ce terrain. Assurances et garanties du constructeur (RC professionnelle, décennale, dommage ouvrage, garantie de remboursement de l'acompte, livraison à prix et délai convenu) : https://www.lmp-constructeur.com/mentions-legales/.Agence Logis du Marais Poitevin de Challans (85300)
- Téléphone :
- 02 51 55 17 74
- Adressse :
- 4 Place du Champ de Foire
85300 Challans, France
