Maison neuve à
Givrand
(85800) Référence :
NR2353166_3
Prix du projet : Maison avec Terrain
prix 205 900 €
- 2 pièces
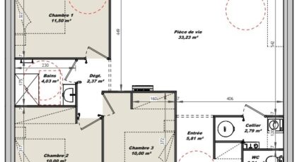
- 3 chambres
- Surface maison 61 m2
******* POUR VOTRE INVESTISSEMENT TRES BON RAPPORT *****
Maison de 2 pièces (61 m²) à vendre à Givrand
EMPLACEMENT PRIVILÉGIÉ - MAISON 2 PIÈCES NEUVE
À vendre : située à 4 km de l'océan Atlantique, bénéficiant d'un emplacement d'exception dans Givrand (85800), votre agence LMP Constructeur Challans est ravie de vous présenter cette maison de 2 pièces de plain-pied de 61 m².
Son intérieur est composé de trois chambres, d'une cuisine et d'une salle de bains. La maison est neuve.
Le terrain du bien est de 247 m².
La maison se situe dans un secteur attractif. On trouve l'École Primaire Privée la Fontaine à moins de 10 minutes à pied. Niveau transports en commun, il y a les gares Saint-Gilles-Croix-de-Vie et Saint-Hilaire-de-Riez à moins de 10 minutes en voiture. On trouve une boulangerie et un commerce à quelques minutes à peine.
Elle est proposée à l'achat pour 205 900 €.
N'hésitez pas à prendre contact avec notre agence (RISSELIN Nicolas : 06-80-33-03-82) pour toute question sur la maison. LMP Constructeur Challans est là pour vous accompagner dans tous vos projets immobiliers.
******* POUR VOTRE INVESTISSEMENT TRES BON RAPPORT *****
Mentions légales
Terrain proposé par un partenaire foncier selon disponibilités et autorisation de publicité au prix de 66 100 €. Hors droit d'enregistrement et frais de notaire. Terrain + Maison proposés au prix de 139 800 € (Hors branchements et raccordements, papiers peints, peintures, revêtement de sol dans les chambres. Tarif modifiable sans préavis). Etiquette énergie : A. Différents modèles disponibles pour ce terrain. Assurances et garanties du constructeur (RC professionnelle, décennale, dommage ouvrage, garantie de remboursement de l'acompte, livraison à prix et délai convenu) : https://www.lmp-constructeur.com/mentions-legales/.Agence Logis du Marais Poitevin de Challans (85300)
- Téléphone :
- 02 51 55 17 74
- Adressse :
- 4 Place du Champ de Foire
85300 Challans, France
