Maison neuve à
Givrand
(85800) Référence :
NR2353166_2
Prix du projet : Maison avec Terrain
prix 202 900 €
- 2 pièces
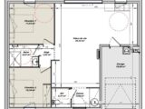
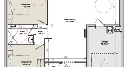
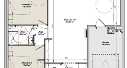
- 2 chambres
- Surface maison 61 m2
******* POUR VOTRE INVESTISSEMENT TRES BON RAPPORT *****
Givrand : maison de 2 pièces (61 m²) à vendre
EMPLACEMENT PRIVILÉGIÉ - MAISON 2 PIÈCES NEUVE
À 4 km de la côte atlantique, nous vous présentons à vendre, bénéficiant d'un emplacement privilégié dans Givrand (85800), cette maison de 2 pièces de plain-pied de 61 m². Son intérieur dispose de deux chambres, d'une cuisine et d'une salle de bains.
Le terrain du bien s'étend sur 247 m².
La maison est neuve.
Cette maison est située dans un quartier recherché. L'École Primaire Privée la Fontaine se trouve à moins de 10 minutes à pied. Côté transports, il y a deux gares (Saint-Gilles-Croix-de-Vie et Saint-Hilaire-de-Riez) à moins de 10 minutes en voiture. On trouve une boulangerie et un commerce à quelques minutes à peine.
Elle est proposée à l'achat pour 202 900 €.
Contactez Nicolas RISSELIN (tél : 06-80-33-03-82) pour toute question sur la maison ou sur les modalités de vente.
******* POUR VOTRE INVESTISSEMENT TRES BON RAPPORT *****
Mentions légales
Terrain proposé par un partenaire foncier selon disponibilités et autorisation de publicité au prix de 66 100 €. Hors droit d'enregistrement et frais de notaire. Terrain + Maison proposés au prix de 136 800 € (Hors branchements et raccordements, papiers peints, peintures, revêtement de sol dans les chambres. Tarif modifiable sans préavis). Etiquette énergie : A. Différents modèles disponibles pour ce terrain. Assurances et garanties du constructeur (RC professionnelle, décennale, dommage ouvrage, garantie de remboursement de l'acompte, livraison à prix et délai convenu) : https://www.lmp-constructeur.com/mentions-legales/.Agence Logis du Marais Poitevin de Challans (85300)
- Téléphone :
- 02 51 55 17 74
- Adressse :
- 4 Place du Champ de Foire
85300 Challans, France
