Maison neuve à
Givrand
(85800) Référence :
TM2353239_4
Prix du projet : Maison avec Terrain
prix 402 000 €
- 4 pièces
- 3 chambres
- Surface maison 110 m2
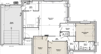
Maison de 4 pièces (110 m²) à vendre à Givrand
EMPLACEMENT PRIVILÉGIÉ - MAISON 4 PIÈCES NEUVE
En vente à 4 km de l'océan Atlantique, nous sommes heureux de vous proposer, bénéficiant d'un emplacement d'exception dans Givrand (85800), cette maison de 4 pièces de plain-pied de 110 m². Elle comporte trois chambres, une cuisine et deux salles de bains.
Le terrain de la maison s'étend sur 557 m².
Cette maison est neuve.
Cette propriété se situe dans un secteur convoité. L'École Primaire Privée la Fontaine est implantée à moins de 10 minutes. Niveau transports en commun, on trouve deux gares (Saint-Gilles-Croix-de-Vie et Saint-Hilaire-de-Riez) à moins de 10 minutes en voiture. Il y a une boulangerie et un commerce à quelques minutes.
Elle est proposée à l'achat pour 402 000 €.
Contactez notre agence (Tony MIGAULT : 06-73-54-47-45) pour plus de renseignements sur la maison ou sur les modalités de vente. Faites de vos projets immobiliers une réalité avec LMP Constructeur Challans.
Mentions légales
Terrain proposé par un partenaire foncier selon disponibilités et autorisation de publicité au prix de 144 000 €. Hors droit d'enregistrement et frais de notaire. Maison proposée, avec un contrat de construction de maison individuelle, dans le cadre de la loi du 19/12/1990, au prix de 258 000 € (Hors branchements et raccordements, papiers peints, peintures, revêtement de sol dans les chambres, qui sont chiffrés dans les travaux qui restent à charge du client. Tarif modifiable sans préavis). Étiquette énergie : A. Différents modèles disponibles pour ce terrain. Assurances et garanties du constructeur comprises (RC professionnelle, décennale, dommage ouvrage).Agence Logis du Marais Poitevin de Challans (85300)
- Téléphone :
- 02 51 55 17 74
- Adressse :
- 4 Place du Champ de Foire
85300 Challans, France
