Maison neuve à
Givrand
(85800) Référence :
NR2353148_4
Prix du projet : Maison avec Terrain
prix 194 900 €
- 2 pièces
- 3 chambres
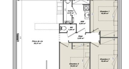
- Surface maison 79 m2
**** A SEULEMENT 5 MINUTES DU CENTRE DE ST GILLES CROIX DE VIE *****
VENTE : maison de 2 pièces (79 m²) à Givrand
EMPLACEMENT PRIVILÉGIÉ - MAISON 2 PIÈCES NEUVE
À vendre sur le littoral atlantique, notre agence LMP Constructeur Challans est ravie de vous proposer cette maison de 2 pièces de plain-pied de 79 m², bénéficiant d'un emplacement d'exception dans Givrand (85800). Elle est composée de trois chambres, d'une cuisine et d'une salle de bains.
Le terrain de la maison est de 222 m².
Cette maison est neuve.
La maison est située dans un quartier recherché. Il y a l'École Primaire Privée la Fontaine à moins de 10 minutes à pied. Côté transports en commun, on trouve deux gares (Saint-Gilles-Croix-de-Vie et Saint-Hilaire-de-Riez) à moins de 10 minutes en voiture. Il y a une boulangerie et un commerce à proximité.
Son prix de vente est de 194 900 €.
N'hésitez pas à prendre contact avec Nicolas RISSELIN (tél : 06-80-33-03-82) pour plus d'informations sur la propriété, sur les modalités de vente ou sur les démarches à suivre. LMP Constructeur Challans est là pour vous accompagner dans tous vos projets immobiliers.
**** A SEULEMENT 5 MINUTES DU CENTRE DE ST GILLES CROIX DE VIE *****
Mentions légales
Terrain proposé par un partenaire foncier selon disponibilités et autorisation de publicité au prix de 59 900 €. Hors droit d'enregistrement et frais de notaire. Maison proposée, avec un contrat de construction de maison individuelle, dans le cadre de la loi du 19/12/1990, au prix de 135 000 € (Hors branchements et raccordements, papiers peints, peintures, revêtement de sol dans les chambres, qui sont chiffrés dans les travaux qui restent à charge du client. Tarif modifiable sans préavis). Étiquette énergie : A. Différents modèles disponibles pour ce terrain. Assurances et garanties du constructeur comprises (RC professionnelle, décennale, dommage ouvrage).Agence Logis du Marais Poitevin de Challans (85300)
- Téléphone :
- 02 51 55 17 74
- Adressse :
- 4 Place du Champ de Foire
85300 Challans, France
