Maison neuve à
Givrand
(85800) Référence :
NR2353148_2
Prix du projet : Maison avec Terrain
prix 173 900 €
- 2 pièces
- 2 chambres
- Surface maison 61 m2
**** A SEULEMENT 5 MINUTES DU CENTRE DE ST GILLES CROIX DE VIE *****
VENTE : maison de 2 pièces (61 m²) à Givrand
EMPLACEMENT PRIVILÉGIÉ - MAISON 2 PIÈCES NEUVE
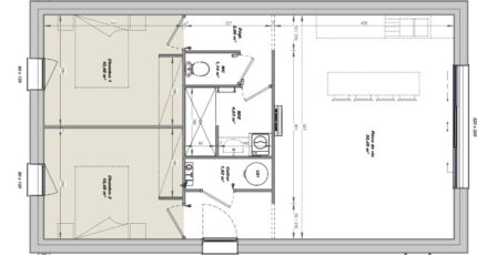
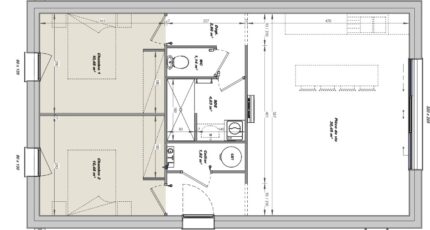
En vente sur la côte atlantique, notre agence LMP Constructeur Challans est heureuse de vous présenter cette maison de 2 pièces de plain-pied de 61 m² et de 222 m² de terrain, bénéficiant d'un emplacement privilégié dans Givrand (85800). Elle inclut deux chambres, une cuisine et une salle de bains.
Cette maison est neuve.
La maison se trouve dans un quartier recherché. Il y a l'École Primaire Privée la Fontaine à moins de 10 minutes à pied. Niveau transports en commun, on trouve les gares Saint-Gilles-Croix-de-Vie et Saint-Hilaire-de-Riez à moins de 10 minutes en voiture. Il y a une boulangerie et un commerce dans les environs.
Son prix de vente est de 173 900 €.
Prenez contact avec notre constructeur (Nicolas RISSELIN : 06-80-33-03-82) pour tout renseignement sur le bien. Faites de vos projets immobiliers une réalité avec LMP Constructeur Challans.
**** A SEULEMENT 5 MINUTES DU CENTRE DE ST GILLES CROIX DE VIE *****
Mentions légales
Terrain proposé par un partenaire foncier selon disponibilités et autorisation de publicité au prix de 59 900 €. Hors droit d'enregistrement et frais de notaire. Maison proposée, avec un contrat de construction de maison individuelle, dans le cadre de la loi du 19/12/1990, au prix de 114 000 € (Hors branchements et raccordements, papiers peints, peintures, revêtement de sol dans les chambres, qui sont chiffrés dans les travaux qui restent à charge du client. Tarif modifiable sans préavis). Étiquette énergie : A. Différents modèles disponibles pour ce terrain. Assurances et garanties du constructeur comprises (RC professionnelle, décennale, dommage ouvrage).Agence Logis du Marais Poitevin de Challans (85300)
- Téléphone :
- 02 51 55 17 74
- Adressse :
- 4 Place du Champ de Foire
85300 Challans, France
