Maison neuve à
Givrand
(85800) Référence :
NR2353148_1
Prix du projet : Maison avec Terrain
prix 166 900 €
- 2 pièces
- 1 chambre
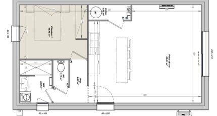
- Surface maison 50 m2
**** A SEULEMENT 5 MINUTES DU CENTRE DE ST GILLES CROIX DE VIE *****
Maison T2 (50 m²) à vendre à Givrand
EMPLACEMENT PRIVILÉGIÉ - MAISON 2 PIÈCES NEUVE
À vendre : à 4 km de la côte atlantique, notre agence LMP Constructeur Challans est ravie de vous proposer, bénéficiant d'un emplacement d'exception dans Givrand (85800), cette maison de 2 pièces de plain-pied de 50 m² et de 222 m² de terrain.
Conçue de plain-pied, elle dispose d'une chambre, d'une cuisine et d'une salle de bains. La maison est neuve.
Cette maison est située dans un quartier prisé. On trouve l'École Primaire Privée la Fontaine à moins de 10 minutes à pied. Côté transports en commun, il y a deux gares (Saint-Gilles-Croix-de-Vie et Saint-Hilaire-de-Riez) à moins de 10 minutes en voiture. On trouve une boulangerie et un commerce à proximité de la maison.
Son prix de vente est de 166 900 €.
Prenez contact avec notre constructeur (Nicolas RISSELIN : 06-80-33-03-82) pour tout renseignement sur la maison, sur les modalités de vente ou sur les démarches à suivre.
**** A SEULEMENT 5 MINUTES DU CENTRE DE ST GILLES CROIX DE VIE *****
Mentions légales
Terrain proposé par un partenaire foncier selon disponibilités et autorisation de publicité au prix de 59 900 €. Hors droit d'enregistrement et frais de notaire. Maison proposée, avec un contrat de construction de maison individuelle, dans le cadre de la loi du 19/12/1990, au prix de 107 000 € (Hors branchements et raccordements, papiers peints, peintures, revêtement de sol dans les chambres, qui sont chiffrés dans les travaux qui restent à charge du client. Tarif modifiable sans préavis). Étiquette énergie : A. Différents modèles disponibles pour ce terrain. Assurances et garanties du constructeur comprises (RC professionnelle, décennale, dommage ouvrage).Agence Logis du Marais Poitevin de Challans (85300)
- Téléphone :
- 02 51 55 17 74
- Adressse :
- 4 Place du Champ de Foire
85300 Challans, France
