Maison neuve à
Givrand
(85800) Référence :
NR2339777_3
Prix du projet : Maison avec Terrain
prix 212 900 €
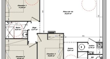
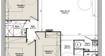
- 2 pièces
- 3 chambres
- Surface maison 61 m2
****A SEULMENT 5 MINUTES DES PLAGES****
VENTE : maison F2 (61 m²) à Givrand
IDÉALEMENT SITUÉE - MAISON 2 PIÈCES NEUVE
Sur la côte atlantique, nous sommes ravis de vous présenter cette maison de 2 pièces de plain-pied de 61 m² et de 244 m² de terrain à vendre, idéalement située dans Givrand (85800). Son intérieur compte trois chambres, une cuisine et une salle de bains.
La maison est neuve.
Cette maison se trouve dans un quartier prisé. L'École Primaire Privée la Fontaine est implantée à moins de 10 minutes à pied. Côté transports, on trouve les gares Saint-Gilles-Croix-de-Vie et Saint-Hilaire-de-Riez à moins de 10 minutes en voiture. Il y a une boulangerie et un commerce à quelques minutes du logement.
Elle est proposée à l'achat pour 212 900 €.
Contactez Nicolas RISSELIN (tél : 06-80-33-03-82) pour toute information sur le bien, sur les modalités de vente ou sur les démarches à suivre.
****A SEULMENT 5 MINUTES DES PLAGES****
Mentions légales
Terrain proposé par un partenaire foncier selon disponibilités et autorisation de publicité au prix de 73 500 €. Hors droit d'enregistrement et frais de notaire. Maison proposée, avec un contrat de construction de maison individuelle, dans le cadre de la loi du 19/12/1990, au prix de 139 400 € (Hors branchements et raccordements, papiers peints, peintures, revêtement de sol dans les chambres, qui sont chiffrés dans les travaux qui restent à charge du client. Tarif modifiable sans préavis). Étiquette énergie : A. Différents modèles disponibles pour ce terrain. Assurances et garanties du constructeur comprises (RC professionnelle, décennale, dommage ouvrage).Agence Logis du Marais Poitevin de Challans (85300)
- Téléphone :
- 02 51 55 17 74
- Adressse :
- 4 Place du Champ de Foire
85300 Challans, France
