Maison neuve à
Givrand
(85800) Référence :
NR2339777_2
Prix du projet : Maison avec Terrain
prix 210 900 €
- 2 pièces
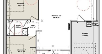
- 2 chambres
- Surface maison 61 m2
****A SEULMENT 5 MINUTES DES PLAGES****
Maison de 2 pièces (61 m²) en vente à Givrand
IDÉALEMENT SITUÉE - MAISON 2 PIÈCES NEUVE
Sur la côte atlantique, LMP Constructeur Challans vous présente cette maison de 2 pièces de plain-pied de 61 m² et de 244 m² de terrain idéalement située dans Givrand (85800). Elle dispose de deux chambres, d'une cuisine et d'une salle de bains.
La maison est neuve.
La maison se situe dans un quartier recherché. On trouve l'École Primaire Privée la Fontaine à moins de 10 minutes à pied. Côté transports en commun, il y a les gares Saint-Gilles-Croix-de-Vie et Saint-Hilaire-de-Riez à moins de 10 minutes en voiture. On trouve une boulangerie et un commerce à proximité de la maison.
Son prix de vente est de 210 900 €.
Prenez contact avec Nicolas RISSELIN (tél : 06-80-33-03-82) pour toute question sur la maison. Concrétisez vos projets immobiliers avec LMP Constructeur Challans.
****A SEULMENT 5 MINUTES DES PLAGES****
Mentions légales
Terrain proposé par un partenaire foncier selon disponibilités et autorisation de publicité au prix de 73 500 €. Hors droit d'enregistrement et frais de notaire. Maison proposée, avec un contrat de construction de maison individuelle, dans le cadre de la loi du 19/12/1990, au prix de 137 400 € (Hors branchements et raccordements, papiers peints, peintures, revêtement de sol dans les chambres, qui sont chiffrés dans les travaux qui restent à charge du client. Tarif modifiable sans préavis). Étiquette énergie : A. Différents modèles disponibles pour ce terrain. Assurances et garanties du constructeur comprises (RC professionnelle, décennale, dommage ouvrage).Agence Logis du Marais Poitevin de Challans (85300)
- Téléphone :
- 02 51 55 17 74
- Adressse :
- 4 Place du Champ de Foire
85300 Challans, France
