Maison neuve à
Givrand
(85800) Référence :
NR2339777_1
Prix du projet : Maison avec Terrain
prix 199 990 €
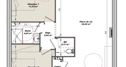
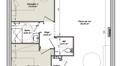
- 2 pièces
- 2 chambres
- Surface maison 61 m2
****A SEULMENT 5 MINUTES DES PLAGES****
Givrand : maison de 2 pièces (61 m²) à vendre
IDÉALEMENT SITUÉE - MAISON 2 PIÈCES NEUVE
À vendre : à 4 km de la côte atlantique, LMP Constructeur Challans vous présente cette maison de 2 pièces de plain-pied de 61 m² et de 244 m² de terrain, idéalement située dans Givrand (85800).
Elle dispose de deux chambres, d'une cuisine et d'une salle de bains. La maison est neuve.
La maison est située dans un quartier convoité. L'École Primaire Privée la Fontaine se trouve à moins de 10 minutes à pied. Niveau transports, il y a les gares Saint-Gilles-Croix-de-Vie et Saint-Hilaire-de-Riez à moins de 10 minutes en voiture. On trouve une boulangerie et un commerce à quelques minutes.
Elle est proposée à l'achat pour 199 990 €.
Contactez notre agence (RISSELIN Nicolas : 06-80-33-03-82) pour toute question sur la maison.
****A SEULMENT 5 MINUTES DES PLAGES****
Mentions légales
Terrain proposé par un partenaire foncier selon disponibilités et autorisation de publicité au prix de 73 500 €. Hors droit d'enregistrement et frais de notaire. Maison proposée, avec un contrat de construction de maison individuelle, dans le cadre de la loi du 19/12/1990, au prix de 126 490 € (Hors branchements et raccordements, papiers peints, peintures, revêtement de sol dans les chambres, qui sont chiffrés dans les travaux qui restent à charge du client. Tarif modifiable sans préavis). Étiquette énergie : A. Différents modèles disponibles pour ce terrain. Assurances et garanties du constructeur comprises (RC professionnelle, décennale, dommage ouvrage).Agence Logis du Marais Poitevin de Challans (85300)
- Téléphone :
- 02 51 55 17 74
- Adressse :
- 4 Place du Champ de Foire
85300 Challans, France
