Maison neuve à
Givrand
(85800) Référence :
NR2335745_3
Prix du projet : Maison avec Terrain
prix 216 900 €
- 2 pièces
- 2 chambres
- Surface maison 61 m2
*****A SEULMENT 5 MINUTES DES PLAGES *****
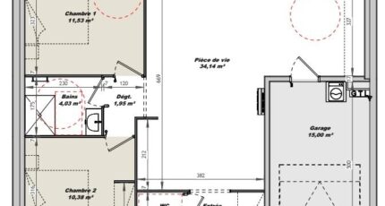
Maison de 2 pièces (61 m²) en vente à Givrand
IDÉALEMENT SITUÉE - MAISON 2 PIÈCES NEUVE
En vente : à 4 km de l'océan Atlantique, découvrez cette maison de 2 pièces de plain-pied de 61 m² idéalement située dans Givrand (85800). Elle comporte deux chambres, une cuisine et une salle de bains.
Le terrain de cette maison s'étend sur 258 m².
Cette maison est neuve.
La maison est située dans un secteur recherché. On trouve l'École Primaire Privée la Fontaine à moins de 10 minutes à pied. Côté transports, il y a les gares Saint-Gilles-Croix-de-Vie et Saint-Hilaire-de-Riez à moins de 10 minutes en voiture. On trouve une boulangerie et un commerce dans les environs.
Son prix de vente est de 216 900 €.
Contactez Nicolas RISSELIN (tél : 06-80-33-03-82) pour obtenir de plus amples renseignements sur le bien ou sur les démarches à suivre. Concrétisez vos projets immobiliers avec LMP Constructeur Challans.
*****A SEULMENT 5 MINUTES DES PLAGES *****
Mentions légales
Terrain proposé par un partenaire foncier selon disponibilités et autorisation de publicité au prix de 78 900 €. Hors droit d'enregistrement et frais de notaire. Maison proposée, avec un contrat de construction de maison individuelle, dans le cadre de la loi du 19/12/1990, au prix de 138 000 € (Hors branchements et raccordements, papiers peints, peintures, revêtement de sol dans les chambres, qui sont chiffrés dans les travaux qui restent à charge du client. Tarif modifiable sans préavis). Étiquette énergie : A. Différents modèles disponibles pour ce terrain. Assurances et garanties du constructeur comprises (RC professionnelle, décennale, dommage ouvrage).Agence Logis du Marais Poitevin de Challans (85300)
- Téléphone :
- 02 51 55 17 74
- Adressse :
- 4 Place du Champ de Foire
85300 Challans, France
