Maison neuve à
Givrand
(85800) Référence :
NR2335745_2
Prix du projet : Maison avec Terrain
prix 206 900 €
- 2 pièces
- 2 chambres
- Surface maison 61 m2
*****A SEULMENT 50 MINUTES DES PLAGES *****
VENTE : maison de 2 pièces (61 m²) à Givrand
IDÉALEMENT SITUÉE - MAISON 2 PIÈCES NEUVE
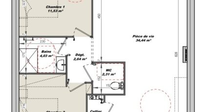
En vente à 4 km de l'océan Atlantique, votre agence LMP Constructeur Challans est ravie de vous proposer cette maison de 2 pièces de plain-pied de 61 m² et de 258 m² de terrain idéalement située dans Givrand (85800).
Elle inclut deux chambres, une cuisine et une salle de bains. Cette maison est neuve.
La maison se situe dans un quartier recherché. On trouve l'École Primaire Privée la Fontaine à moins de 10 minutes à pied. Côté transports, il y a les gares Saint-Gilles-Croix-de-Vie et Saint-Hilaire-de-Riez à moins de 10 minutes en voiture. On trouve une boulangerie et un commerce dans les environs.
Son prix de vente est de 206 900 €.
Contactez notre constructeur (RISSELIN Nicolas : 06-80-33-03-82) pour obtenir de plus amples renseignements sur la maison. LMP Constructeur Challans est là pour vous accompagner dans tous vos projets immobiliers.
*****A SEULMENT 50 MINUTES DES PLAGES *****
Mentions légales
Terrain proposé par un partenaire foncier selon disponibilités et autorisation de publicité au prix de 78 900 €. Hors droit d'enregistrement et frais de notaire. Maison proposée, avec un contrat de construction de maison individuelle, dans le cadre de la loi du 19/12/1990, au prix de 128 000 € (Hors branchements et raccordements, papiers peints, peintures, revêtement de sol dans les chambres, qui sont chiffrés dans les travaux qui restent à charge du client. Tarif modifiable sans préavis). Étiquette énergie : A. Différents modèles disponibles pour ce terrain. Assurances et garanties du constructeur comprises (RC professionnelle, décennale, dommage ouvrage).Agence Logis du Marais Poitevin de Challans (85300)
- Téléphone :
- 02 51 55 17 74
- Adressse :
- 4 Place du Champ de Foire
85300 Challans, France
