Maison neuve à
Givrand (85800) Référence : NR2313195_5

Prix du projet : Maison avec Terrain

prix 221 900 €

  • 4 pièces
  • 3 chambres
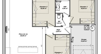
  • Surface maison 79 m2

****PROCHE DU BOURG ET A SEULEMENT QUELQUES MINUTES DE LA MER*****

VENTE : maison T4 (79 m²) à Givrand
MAISON 4 PIÈCES NEUVE
À vendre : située à 4 km de la côte atlantique, nous sommes heureux de vous proposer à Givrand (85800), cette maison de 4 pièces de plain-pied de 79 m² et de 380 m² de terrain. Son intérieur compte trois chambres, une cuisine et une salle de bains.
La maison est neuve.
Il y a l'École Primaire Privée la Fontaine à moins de 10 minutes à pied. Côté transports en commun, on trouve les gares Saint-Gilles-Croix-de-Vie et Saint-Hilaire-de-Riez à moins de 10 minutes en voiture. Il y a une boulangerie et un commerce à proximité.
Elle est à vendre pour la somme de 221 900 €.
N'hésitez pas à prendre contact avec notre agence (RISSELIN Nicolas : 06-80-33-03-82) pour obtenir de plus amples renseignements sur la maison ou sur les modalités de vente.


****PROCHE DU BOURG ET A SEULEMENT QUELQUES MINUTES DE LA MER*****

Mentions légales

Terrain proposé par un partenaire foncier selon disponibilités et autorisation de publicité au prix de 84 000 €. Hors droit d'enregistrement et frais de notaire. Maison proposée, avec un contrat de construction de maison individuelle, dans le cadre de la loi du 19/12/1990, au prix de 137 900 € (Hors branchements et raccordements, papiers peints, peintures, revêtement de sol dans les chambres, qui sont chiffrés dans les travaux qui restent à charge du client. Tarif modifiable sans préavis). Étiquette énergie : A. Différents modèles disponibles pour ce terrain. Assurances et garanties du constructeur comprises (RC professionnelle, décennale, dommage ouvrage).

Contactez l'agence de Saint-Gilles-Croix-de-Vie

02 51 55 34 29

    * Champs obligatoires

    Vos informations sont traitées par HEXAOM et transmises à un conseiller commercial qui vous contactera afin de répondre à votre demande. Les plans et images présentés sur notre site sont la propriété d’HEXAOM et ne peuvent pas être reproduits sans son accord. Pour retrouver notre politique de protection des données personnelles et exercer vos droits conformément à la « loi informatique et liberté » cliquez-ici.